Заявка на оказание услуги

После отправки заявки на указанную электронную почту будет отправлено подтверждение

Фамилия Имя Отчество Заполните поле
Телефон Заполните поле
Email Заполните поле
Текст Заполните поле
Введите символы
Заполните поле
+7 (383) 363 18 18
заказать звонок

Заказать звонок

Имя Заполните поле
Телефон Заполните поле
Комментарий
Введите символы
Заполните поле
ООО «Деловой Новосибирск»
ИНН 5406374623
630102, г. Новосибирск, ул. Кирова, 50, офис 25/1
Тел/факс +7 (383) 363 18 18 (многоканальный)
e-mail: office@dn-nsk.ru; www.dn-nsk.ru

Коммерческая недвижимость. Аренда
$ 80,97     € 94,08 Курс ЦБ на 25.10.2025

ВАРИАНТ №А024778-У
Тип помещения Универсальное помещение
Город/ посёлок, район Новосибирск. Железнодорожный
Местонахождение/ адрес ул. Челюскинцев (ориентир)
Стоимость 900 Р / м2
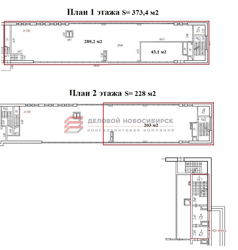
Общая площадь 373.4 м2
Этаж 1
Этажность 3

Описание:

Предлагается в аренду универсальное помещение общей площадью 629,8 кв.м, занимающее 1 (фактически как 2) и 2 (фактически как 3) этажи административного здания. 1 линия домов, большая удобная парковка на 150 машиномест. 

1 этаж площадью 373,4 кв.м, два отдельных входа (один со стороны двора и общий вход на два этажа непосредственно с улицы), высота потолка 3 м, в настоящее время разделено на два помещения: зал свободной планировки 289,2 кв.м с с/узлами, подсобными помещениями и помещение 45,5 кв.м с собственным с/узлом и отдельным входом со стороны двора. 

2 этаж площадью 228,0 кв.м, высота потолка 3 м, торгово-выставочный зал свободной планировки, подсобное помещение и с/узел. 

Витражное остекление, вход из общей входной группы на первом этаже. Входная группа площадью 28,4 кв.м общая на два этажа. Состояние ремонта - под самоотделку, выполнена разводка основных коммуникаций в том числе система приточно-вытяжной вентиляции. В настоящее время ведутся ремонтные работы по внутренней отделке (напольное покрытие - плитка, потолок - армстронг).  

Помещения подходят для торговой деятельности, офиса продаж, фитнес-центра и многого другого. Высокий автомобильный и пешеходный трафики. 

Аренда возможна как целиком 629,8 кв.м по цене 800 руб./кв.м, так и поэтажно: 1 этаж площадью 373,4 кв.м по цене 900 руб./кв.м; 2 этаж площадью 228 кв.м по цене 700 руб./кв.м. Предусмотрен обеспечительный платеж в размере месячной арендной платы. Коммунальные услуги оплачиваются дополнительно. При аренде поэтажно входная группа (28,4 кв.м) будет в совместном пользовании у арендаторов 1 и 2 этажей. Собственник физическое лицо, договор аренды от ИП.



Контактное лицо: Дмитрий Валерьевич Белых

Контактный телефон: +7 (383) 363 18 18 (многоканальный)

e-mail: dn5@dn-nsk.ru


Похожие варианты

Универсальное помещение
Заельцовский
383 м2
Универсальное помещение
Октябрьский
284.2 м2
Универсальное помещение
Октябрьский
384.2 м2
Универсальное помещение
Дзержинский
448.7 м2
Универсальное помещение
Заельцовский
322.5 м2