Заявка на оказание услуги

После отправки заявки на указанную электронную почту будет отправлено подтверждение

Фамилия Имя Отчество Заполните поле
Телефон Заполните поле
Email Заполните поле
Текст Заполните поле
Введите символы
Заполните поле
+7 (383) 363 18 18
заказать звонок

Заказать звонок

Имя Заполните поле
Телефон Заполните поле
Комментарий
Введите символы
Заполните поле
ООО «Деловой Новосибирск»
ИНН 5406374623
630102, г. Новосибирск, ул. Кирова, 50, офис 25/1
Тел/факс +7 (383) 363 18 18 (многоканальный)
e-mail: office@dn-nsk.ru; www.dn-nsk.ru

Коммерческая недвижимость. Аренда
$ 80,97     € 94,08 Курс ЦБ на 25.10.2025

ВАРИАНТ №А020530-У
Тип помещения Универсальное помещение
Город/ посёлок, район Новосибирск. Ленинский
Местонахождение/ адрес ул. Троллейная
Стоимость 1 000 Р / м2
Общая площадь 202 м2
Этаж 1
Этажность 10

Описание:

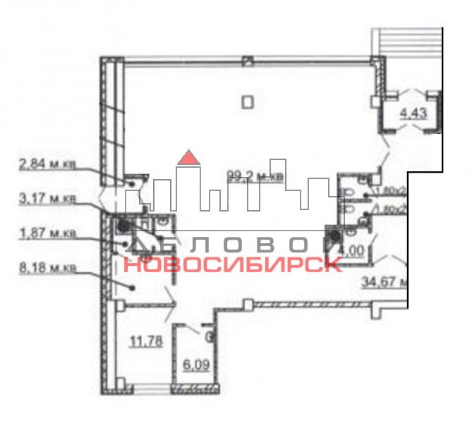
Предлагается в аренду универсальное помещение, расположенное на 1 этаже административной части жилого дома, выход на магистральную улицу, с высоким автомобильным и пешеходным трафиками, рядом остановка общественного транспорта. Общая площадь 202,0 кв.м, 2 отдельных входа (основной и служебный), тамбур, торговый зал 99,2 кв.м, комната 11,78 кв.м, 3 с/узла, вспомогательные помещения, перегородки некапитальные, возможно изменение торговой площади по Вашему желанию, высота потолка 3,87 м, витражное остекление, объект под самоотделку. Отличный вариант для торговой, финансовой деятельности, офиса с выставочным залом. Стоимость 1000 руб./кв.м, коммунальные услуги оплачиваются дополнительно. Предоставляются арендные каникулы. Приветствуется долгосрочный договор аренды. Собственник физическое лицо.



Контактное лицо: Специалист

Контактный телефон: +7 (383) 363 18 18 (многоканальный)

e-mail: office@dn-nsk.ru


Похожие варианты

Универсальное помещение
Октябрьский
130 м2
Универсальное помещение
Октябрьский
130 м2
Универсальное помещение
Октябрьский
256 м2
Универсальное помещение
Центральный
161.63 м2
Универсальное помещение
Заельцовский
124.1 м2