Заявка на оказание услуги

После отправки заявки на указанную электронную почту будет отправлено подтверждение

Фамилия Имя Отчество Заполните поле
Телефон Заполните поле
Email Заполните поле
Текст Заполните поле
Введите символы
Заполните поле
+7 (383) 363 18 18
заказать звонок

Заказать звонок

Имя Заполните поле
Телефон Заполните поле
Комментарий
Введите символы
Заполните поле
ООО «Деловой Новосибирск»
ИНН 5406374623
630102, г. Новосибирск, ул. Кирова, 50, офис 25/1
Тел/факс +7 (383) 363 18 18 (многоканальный)
e-mail: office@dn-nsk.ru; www.dn-nsk.ru

Коммерческая недвижимость. Аренда
$ 80,97     € 94,08 Курс ЦБ на 25.10.2025

ВАРИАНТ №А020102-У
Тип помещения Универсальное помещение
Город/ посёлок, район Новосибирск. Ленинский
Местонахождение/ адрес ул. Станиславского (ориентир)
Стоимость 625 Р / м2
Общая площадь 144 м2
Этаж 1
Этажность 10

Описание:

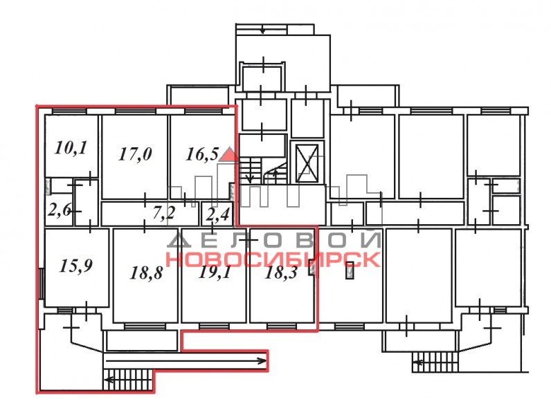
Предлагается в аренду универсальное помещение площадью 144 кв.м.*625 руб./кв.м., коммунальные услуги оплачиваются дополнительно. 1 этаж административной части жилого дома, отдельный вход, кабинетная система, все кабинеты с окнами, с/узел. Состояние ремонта: под чистовую самоотделку. Собственник готов выполнить ремонт под конкретного арендатора или предоставить арендные каникулы. Э/мощность 4,5 кВт. Имеется место на фасаде для размещения рекламной вывески. Дом расположен в 70 метрах от оживленной магистрали, вход в помещение с прилегающей к магистрали улицы. Рядом остановки общественного транспорта. Помещение подойдет для медицинского, образовательного или детского центров, офиса, салона красоты.



Контактное лицо: Белых Дмитрий Валерьевич

Контактный телефон: +7 (383) 363 18 18 (многоканальный)

e-mail: dn5@dn-nsk.ru


Похожие варианты

Универсальное помещение
Октябрьский
130 м2
Универсальное помещение
Центральный
200 м2
Универсальное помещение
Калининский
135 м2
Универсальное помещение
Калининский
69 м2
Универсальное помещение
Ленинский
208.5 м2