Заявка на оказание услуги

После отправки заявки на указанную электронную почту будет отправлено подтверждение

Фамилия Имя Отчество Заполните поле
Телефон Заполните поле
Email Заполните поле
Текст Заполните поле
Введите символы
Заполните поле
+7 (383) 363 18 18
заказать звонок

Заказать звонок

Имя Заполните поле
Телефон Заполните поле
Комментарий
Введите символы
Заполните поле
ООО «Деловой Новосибирск»
ИНН 5406374623
630102, г. Новосибирск, ул. Кирова, 50, офис 25/1
Тел/факс +7 (383) 363 18 18 (многоканальный)
e-mail: office@dn-nsk.ru; www.dn-nsk.ru

Коммерческая недвижимость. Аренда
$ 81,27     € 94,39 Курс ЦБ на 24.10.2025

ВАРИАНТ №А005752-У
Тип помещения Универсальное помещение
Город/ посёлок, район Новосибирск. Центральный
Местонахождение/ адрес ул. Гоголя
Стоимость 450 Р / м2
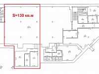
Общая площадь 130 м2
Этаж -1
Этажность 10

Описание:

Предлагается в аренду помещение универсального назначения под выставочный зал, интернет-магазин, заведение общественного питания, развлекательное учреждение, фитнес-центр и т.п.  

Первая линия магистрали - ул. Гоголя, активный автомобильный и пешеходный трафики, вблизи остановка общественного транспорта и станция метрополитена метро Покрышкина. 

Предусмотрена парковочная зона.

Помещение расположено в цоколе административной части жилого дома 2007 года постройки, вход на уровне 1 этажа с витражом и широким лестничным маршем.

Общая площадь 662,3 кв.м, разделено на 3 арендатора (перегородки установлены, имеются входные группы с первой линии): 369,7 кв.м ( 130 кв.м свободно и 239,7 кв.м сдано под бар, 280,0 кв.м сдано под кафе-столовую).

Предлагается в аренду часть 130 кв.м, общий вход с баром. 

Высота потолка 3 м, в помещениях частично выполнен ремонт (пол - керамогранит), стены, потолок требуют отделки. С/узел не организован, возможно установить. 

В наличии пожарная сигнализация, все коммуникации центральные, э/мощность на 130 кв.м - 15 кВт, установлена приточно-вытяжная вентиляция.

Стоимость 450 руб./кв.м. Все коммунальные услуги оплачиваются дополнительно. 

Собственник юридическое лицо, долгосрочная аренда приветствуется.

Компания "Деловой Новосибирск" - официальный представитель собственника. Комиссия для арендатора - 0%.



Контактное лицо: Марина Сергеевна Белых (Лысенко)

Контактный телефон: +7 (383) 363 18 18

e-mail: dn3@dn-nsk.ru


Похожие варианты

Универсальное помещение
Октябрьский
130 м2
Универсальное помещение
Центральный
200 м2
Универсальное помещение
Калининский
135 м2
Универсальное помещение
Калининский
69 м2
Универсальное помещение
Октябрьский
200.4 м2