Заявка на оказание услуги

После отправки заявки на указанную электронную почту будет отправлено подтверждение

Фамилия Имя Отчество Заполните поле
Телефон Заполните поле
Email Заполните поле
Текст Заполните поле
Введите символы
Заполните поле
+7 (383) 363 18 18
заказать звонок

Заказать звонок

Имя Заполните поле
Телефон Заполните поле
Комментарий
Введите символы
Заполните поле
ООО «Деловой Новосибирск»
ИНН 5406374623
630102, г. Новосибирск, ул. Кирова, 50, офис 25/1
Тел/факс +7 (383) 363 18 18 (многоканальный)
e-mail: office@dn-nsk.ru; www.dn-nsk.ru

Коммерческая недвижимость. Продажа
$ 78,84     € 91,73 Курс ЦБ на 16.10.2025

ВАРИАНТ №П026592-Т
Тип помещения Торговое помещение
Город/ посёлок, район Новосибирск. Калининский
Местонахождение/ адрес ул. Богдана Хмельницкого
Стоимость Р$
15 000 000 Р144 718 €160 672 $
122 649 Р / м21 191 € / м21 319 $ / м2
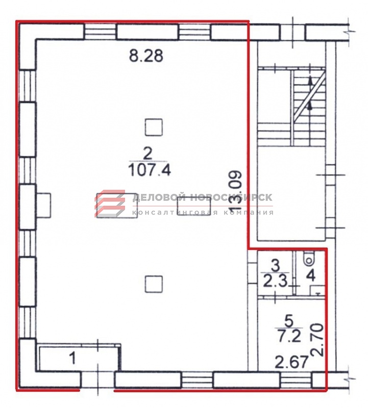
Общая площадь 122.3 м2

Описание:

Предлагается к продаже торговое помещение площадью 122,3 кв.м, первая линия домов, первый этаж административной части жилого дома, отдельный вход, большой торговый зал площадью 107,4 кв.м, кабинет 7,2 кв.м, с/узел.

Выполнен ремонт, на полу плитка. Большое количество окон (8 шт.) обеспечивает хорошее естественное освещение, два больших витражных окна с фасадной части дома. Коммуникации - центральные сети, электрическая мощность 15 кВт. Помещение оборудовано охранной и пожарной сигнализациями.

Хороший пешеходный и автомобильный трафики, в непосредственном окружении большой жилой массив.

Помещение возможно использовать для ведения торговой деятельности, оказания услуг населению или арендного бизнеса. Арендная ставка в данном месте составляет 900-1000 руб./кв.м в месяц.

Стоимость объекта 15 000 000 рублей. Собственник физическое лицо.



Контактное лицо: Дмитрий Валерьевич Белых

Контактный телефон: +7 (383) 363 18 18 (многоканальный)

e-mail: dn5@dn-nsk.ru


Похожие варианты

Торговое помещение
Октябрьский
113.9 м2
Торговое помещение
Октябрьский
117.4 м2
Торговое помещение
Ленинский
148.1 м2
Торговое помещение
Кировский
82.4 м2
Торговое помещение
Октябрьский
148 м2