Заявка на оказание услуги

После отправки заявки на указанную электронную почту будет отправлено подтверждение

Фамилия Имя Отчество Заполните поле
Телефон Заполните поле
Email Заполните поле
Текст Заполните поле
Введите символы
Заполните поле
+7 (383) 363 18 18
заказать звонок

Заказать звонок

Имя Заполните поле
Телефон Заполните поле
Комментарий
Введите символы
Заполните поле
ООО «Деловой Новосибирск»
ИНН 5406374623
630102, г. Новосибирск, ул. Кирова, 50, офис 25/1
Тел/факс +7 (383) 363 18 18 (многоканальный)
e-mail: office@dn-nsk.ru; www.dn-nsk.ru

Коммерческая недвижимость. Аренда
$ 81,35     € 94,67 Курс ЦБ на 22.10.2025

ВАРИАНТ №А025192-У
Тип помещения Универсальное помещение
Город/ посёлок, район Новосибирск. Кировский
Местонахождение/ адрес ул. Петухова (ориентир)
Стоимость 700 Р / м2
Общая площадь 95 м2
Этаж 1
Этажность 11

Описание:

Предлагается в аренду универсальное помещение, расположенное в активно строящемся жилом комплексе, с высокой плотностью населения.

Развитая инфраструктура, хорошая транспортная доступность. Наличие парковок для автомобилей являются отличными показателями для организации коммерческой деятельности.

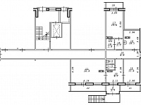
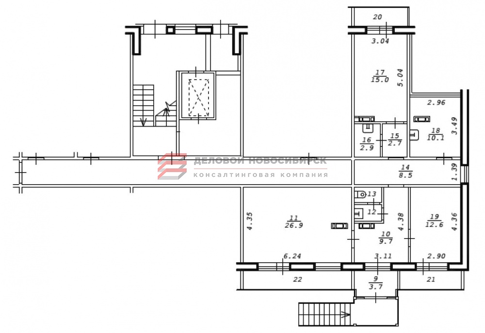
Первый этаж административной части жилого дома, общая площадь 95,0 кв.м, отдельный вход, холл 9,7 кв.м, 3 комнаты - 12,6 кв.м, 15,0 кв.м, 26,9 кв.м, с/узел, 2 лоджии, высота потолка 2,55 м.

Выполнен ремонт: на полу коммерческий линолеум, на стенах обои под покраску, потолок армстронг.

Собственник юридическое лицо, работает на упрощенной системе налогообложения.

Стоимость аренды 700 руб./кв.м, коммунальные услуги оплачиваются дополнительно. Предусмотрен обеспечительный платеж в размере месячной арендной стоимости.

Варианты использования: офисная деятельность, сервисный центр, мастерская по ремонту и пошиву одежды, интернет-магазин, медицинский центр.



Контактное лицо: Людмила Николаевна Герега

Контактный телефон: +7 (383) 363 18 18 (многоканальный)

e-mail: dn2@dn-nsk.ru


Похожие варианты

Универсальное помещение
Центральный
26.4 м2
Универсальное помещение
Октябрьский
130 м2
Универсальное помещение
Октябрьский
100 м2
Универсальное помещение
Калининский
135 м2
Универсальное помещение
Калининский
69 м2