Заявка на оказание услуги

После отправки заявки на указанную электронную почту будет отправлено подтверждение

Фамилия Имя Отчество Заполните поле
Телефон Заполните поле
Email Заполните поле
Текст Заполните поле
Введите символы
Заполните поле
+7 (383) 363 18 18
заказать звонок

Заказать звонок

Имя Заполните поле
Телефон Заполните поле
Комментарий
Введите символы
Заполните поле
ООО «Деловой Новосибирск»
ИНН 5406374623
630102, г. Новосибирск, ул. Кирова, 50, офис 25/1
Тел/факс +7 (383) 363 18 18 (многоканальный)
e-mail: office@dn-nsk.ru; www.dn-nsk.ru

Коммерческая недвижимость. Аренда
$ 81,35     € 94,67 Курс ЦБ на 22.10.2025

ВАРИАНТ №А003640-Т
Тип помещения Универсальное помещение
Город/ посёлок, район Новосибирск. Железнодорожный
Местонахождение/ адрес ул. Урицкого
Стоимость 950 Р / м2
Общая площадь 84.8 м2
Этаж 1
Этажность 5

Описание:

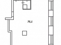
Предлагается в аренду универсальное помещение, расположенное с выходом на оживленную улицу тихого центра с хорошим пешеходным и автомобильным трафиками. Общая площадь 84,8 кв.м, 2 отдельных входа, тамбур, торговый зал 75,1 кв.м, кабинет 4,2 кв.м, с/узел, э/мощности 1,3 кВт, выполнен качественный ремонт, установлена охранно-пожарная сигнализация. Стоимость 950 руб./кв.м, коммунальные услуги оплачиваются дополнительно (ориентировочно 5000-6000 рублей в месяц). Предусмотрен обеспечительный платеж в размере месячной арендной платы. Собственник физическое лицо. Хорошее месторасположение, рядом остановки общественного транспорта, в шаговой доступности станция метро «Площадь Ленина» (5-10 минут). Варианты использования: банковская, торговая деятельность (кроме торговли продовольственными товарами), бутик, салон красоты, интернет-магазин. Данное помещение является объектом культурного наследия. 




Контактное лицо: Специалист

Контактный телефон: +7 (383) 363 18 18

e-mail: office@dn-nsk.ru


Похожие варианты

Универсальное помещение
Октябрьский
130 м2
Универсальное помещение
Октябрьский
100 м2
Универсальное помещение
Центральный
161.63 м2
Универсальное помещение
Заельцовский
124.1 м2
Универсальное помещение
Калининский
69 м2