Заявка на оказание услуги

После отправки заявки на указанную электронную почту будет отправлено подтверждение

Фамилия Имя Отчество Заполните поле
Телефон Заполните поле
Email Заполните поле
Текст Заполните поле
Введите символы
Заполните поле
+7 (383) 363 18 18
заказать звонок

Заказать звонок

Имя Заполните поле
Телефон Заполните поле
Комментарий
Введите символы
Заполните поле
ООО «Деловой Новосибирск»
ИНН 5406374623
630102, г. Новосибирск, ул. Кирова, 50, офис 25/1
Тел/факс +7 (383) 363 18 18 (многоканальный)
e-mail: office@dn-nsk.ru; www.dn-nsk.ru

Коммерческая недвижимость. Аренда
$ 81,35     € 94,67 Курс ЦБ на 22.10.2025

ВАРИАНТ №А025236-У
Тип помещения Универсальное помещение
Город/ посёлок, район Новосибирск. Октябрьский
Местонахождение/ адрес ул.Ипподромская (ориентир)
Стоимость 369 Р / м2
Общая площадь 705 м2
Этаж -1
Этажность 10

Описание:

Предлагается в аренду универсальные помещение для организации современного офиса, образовательного центра, салона красоты, выставочного зала, детского развлекательного центра, магазина-склада, спортивного учреждения и т.п.

Месторасположение
Первая линия активной магистрали, высокий автомобильный трафик. Удобный подъезд. Большая парковка. 15 минут пешим ходом до станции метрополитена. 3 минуты езды на автомобиле до центра города. Окружение - новые жилые дома, торговые центры, государственные учреждения.

Характеристики объекта
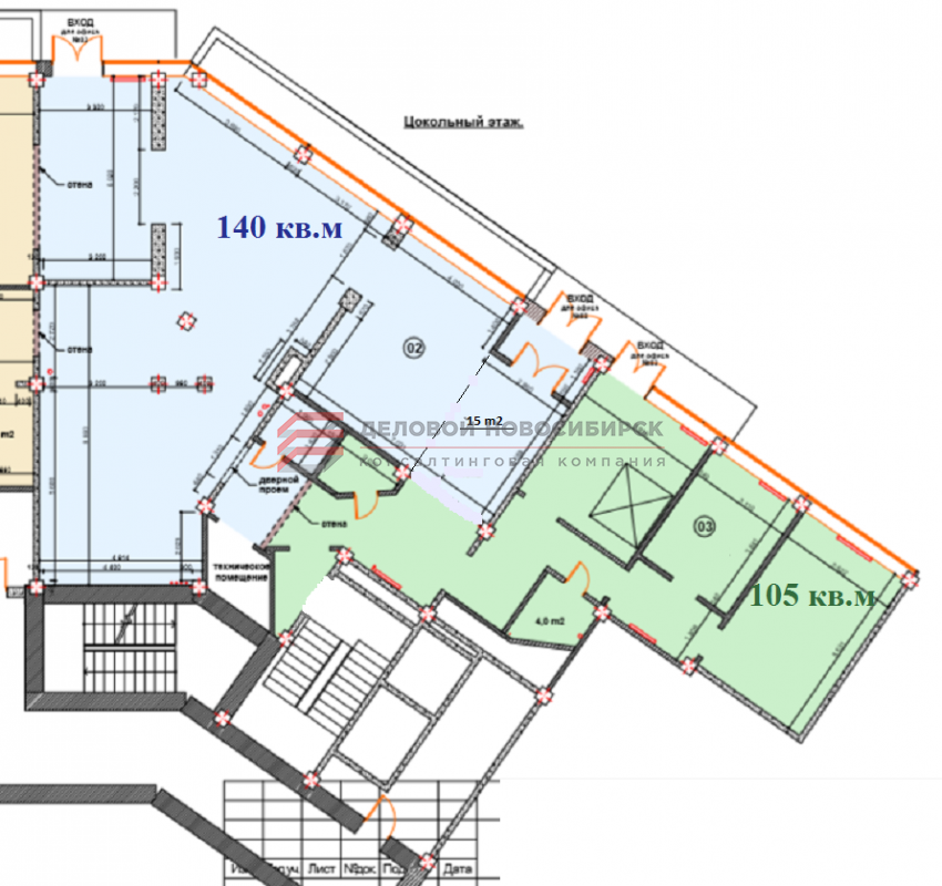
Высокий цокольный этаж жилого дома 2004 года постройки (фактически на уровне 1 этажа), общая площадь 245,0 кв.м, в т.ч. 2 самостоятельных помещения - 140 кв.м и 105 кв.м, имеются два отдельных входа, витражные окна.
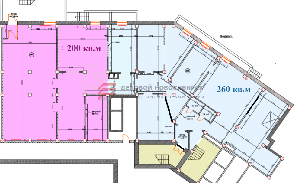
Подвал жилого дома, общая площадь 460,0 кв.м, в т.ч. 2 самостоятельных помещения - 200,0 кв.м и 260,0 кв.м, имеются два отдельных входа.
Все помещения можно арендовать по отдельности или в различной конфигурации:
1) 140,0 кв.м;
2) 105,0 кв.м;
3) 200,0 кв.м;
4) 260,0 кв.м;
5) 140,0 кв.м + 200,0 кв.м = 340,0 кв.м;
6) 105,0 кв.м + 260,0 кв.м = 365,0 кв.м;
7) 140,0 кв.м + 105,0 кв.м = 245,0 кв.м;
8) 200,0 кв.м + 260,0 кв.м = 460,0 кв.м;
9) 140,0 кв.м + 105,0 кв.м + 200,0 кв.м + 260,0 кв.м = 705,0 кв.м.
Объекты под самоотделку, требуется ремонт и разводка всех коммуникаций (за исключением системы отопления). Готовы предоставить арендные каникулы или сделать ремонт под арендатора при его долгосрочных намерениях и готовности к предоплате за несколько месяцев аренды.

Юридический аспект
Собственник физическое лицо. Договор аренды от ИП. Долгосрочная аренда возможна.

Коммерческий аспект
Стоимость аренды за высокий цоколь - 500 руб./кв.м. Стоимость аренды за подвал - 300 руб./кв.м. Арендатор оплачивает дополнительно коммунальные услуги: электроэнергию, тепло, водоснабжение и канализацию, телефон, интернет, услуги охраны. .

Контактное лицо: Марина Сергеевна Белых (Лысенко)

Контактный телефон: +7 (383) 363 18 18 (многоканальный)

e-mail: dn3@dn-nsk.ru


Похожие варианты

Универсальное помещение
Калининский
645.5 м2
Универсальное помещение
Ленинский
735.7 м2
Универсальное помещение
Октябрьский
769.2 м2
Универсальное помещение
Ленинский
667 м2
Универсальное помещение
Ленинский
750 м2