Заявка на оказание услуги

После отправки заявки на указанную электронную почту будет отправлено подтверждение

Фамилия Имя Отчество Заполните поле
Телефон Заполните поле
Email Заполните поле
Текст Заполните поле
Введите символы
Заполните поле
+7 (383) 363 18 18
заказать звонок

Заказать звонок

Имя Заполните поле
Телефон Заполните поле
Комментарий
Введите символы
Заполните поле
ООО «Деловой Новосибирск»
ИНН 5406374623
630102, г. Новосибирск, ул. Кирова, 50, офис 25/1
Тел/факс +7 (383) 363 18 18 (многоканальный)
e-mail: office@dn-nsk.ru; www.dn-nsk.ru

Коммерческая недвижимость. Аренда
$ 81,50     € 95,64 Курс ЦБ на 02.10.2025

ВАРИАНТ №А024325-ПС, А024448-ПС
Тип помещения Производственно-складское помещение
Город/ посёлок, район Новосибирск. Кировский
Местонахождение/ адрес ул. Петухова
Стоимость 250 Р / м2
Общая площадь 5200 м2
Этаж 1
Этажность 2

Описание:

Предлагаются в аренду производственно-складские помещения.

Месторасположение
Кировский район, ул. Петухова.
Огороженная и охраняемая территория предприятия (ЧОП), ведется видеонаблюдение по периметру и внутри помещений, пропускной режим, проезд бесплатный.
Большая площадка для маневрирования еврофур.
Парковка сотрудников за территорией, возможна платная парковка на территории - 500 рублей в месяц.

Характеристики объекта 
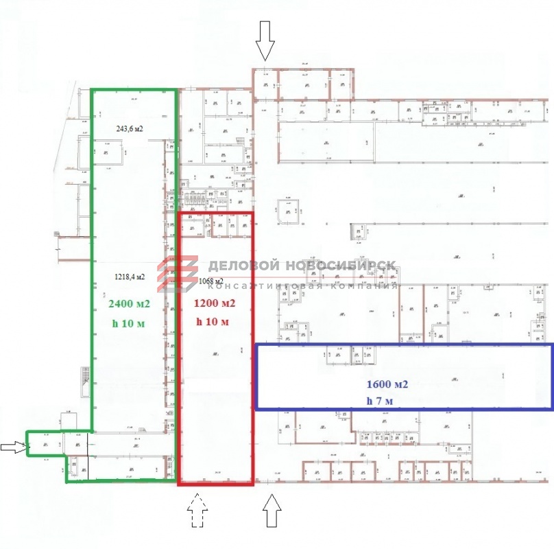
Сдается три цеха
- 2400 кв.м (100*22); 
- 1200 кв.м (18*66);
- 1600 кв.м.

Параметры цехов 2400 кв.м и 1200 кв.м
- 2 подвесных крана по 10 тонн (в каждом цехе); 
- высота потолков - 10 м; 
- отопление, водопровод центральные, электрические мощности до 500 кВт; 
- полы бетонные; 
- температурный режим до +16С; 
- имеются встроенные офисно-бытовые помещения внутри цеха (рассматривается их демонтаж для увеличения площади цеха);
- в 2400 кв.м есть 1 отдельные ворота под еврофуру (можно добавить еще 2-3), в 1200 кв.м есть ворота в общий коридор для разгрузки, возможно организовать собственные ворота под еврофуру.

Параметры цеха 1600 кв.м
- высота потолков - 7 м; 
- отопление, водопровод центральные, электрические мощности до 500 кВт; 
- полы бетонные; 
- 2 ворот под еврофуру из общего коридора (металлические); 
- грузоподъемных механизмов нет; 
- предусмотрено бытовое помещение внутри цеха;
- с/узлы с новым ремонтом общие в здании; 
- температурный режим до +16С.

Собственник готов улучшить состояние помещения под арендатора, в частности, залить антипылевые полы (арендная ставка в этом случае - предмет переговоров). 
Есть возможность арендовать офисные помещения в административном здании до 1000 кв.м на 2 этаже (ремонт будет выполнен под арендатора). 
На территории есть железнодорожный тупик.

Юридический аспект
Собственник юридическое лицо. Обременения права собственности не зарегистрированы. Предлагается к заключению договор аренды на 11 месяцев с пролонгацией.

Коммерческий аспект
Стоимость аренды 250 рублей за кв.м, НДС входит в стоимость, дополнительно оплачиваются коммунальные услуги (отопление, вода и электроэнергия по счетчикам).



Контактное лицо: Марина Сергеевна Белых (Лысенко)

Контактный телефон: +7 (383) 363 18 18 (многоканальный)

e-mail: dn3@dn-nsk.ru

Цех 2400 кв.м
Цех 2400 кв.м Цех 2400 кв.м Цех 2400 кв.м Цех 2400 кв.м Цех 2400 кв.м Цех 2400 кв.м Цех 2400 кв.м Цех 1200 кв.м Цех 1200 кв.м Цех 1200 кв.м Цех 1600 кв.м Цех 1600 кв.м Цех 1600 кв.м Цех 1600 кв.м

Похожие варианты

Производственно-складское помещение
Советский
5431.7 м2
Производственно-складское помещение
Ленинский
5000 м2
Производственно-складское помещение
Кировский
5648.6 м2
Производственно-складское помещение
Новосибирск
4700 м2
Производственно-складское помещение
Ленинский
5000 м2