Заявка на оказание услуги

После отправки заявки на указанную электронную почту будет отправлено подтверждение

Фамилия Имя Отчество Заполните поле
Телефон Заполните поле
Email Заполните поле
Текст Заполните поле
Введите символы
Заполните поле
+7 (383) 363 18 18
заказать звонок

Заказать звонок

Имя Заполните поле
Телефон Заполните поле
Комментарий
Введите символы
Заполните поле
ООО «Деловой Новосибирск»
ИНН 5406374623
630102, г. Новосибирск, ул. Кирова, 50, офис 25/1
Тел/факс +7 (383) 363 18 18 (многоканальный)
e-mail: office@dn-nsk.ru; www.dn-nsk.ru

Коммерческая недвижимость. Аренда
$ 81,35     € 94,67 Курс ЦБ на 22.10.2025

ВАРИАНТ №А024325-ПС
Тип помещения Производственно-складское помещение
Город/ посёлок, район Новосибирск. Кировский
Местонахождение/ адрес ул. Петухова
Стоимость 250 Р / м2
Общая площадь 2400 м2
Этаж 1
Этажность 2

Описание:

Предлагается в аренду производственно-складское помещение.

Месторасположение
Кировский район, ул. Петухова.
Огороженная и охраняемая территория предприятия (ЧОП), ведется видеонаблюдение по периметру и внутри помещений, пропускной режим, проезд бесплатный.
Большая площадка для маневрирования еврофур.
Парковка сотрудников за территорией, возможна платная парковка на территории - 500 рублей в месяц.

Характеристики объекта
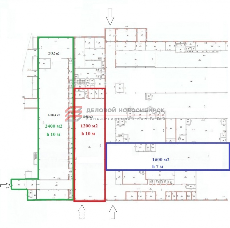
Общая площадь помещения 3600 кв.м, состоит из 2 цехов: 2400 кв.м (100*22) и 1200 кв.м (18*66), соединены между собой. СВОБОДЕН ЦЕХ 2400 кв.м (на 1 этаже 2100 кв.м и в антресоле 300 кв.м, двое ворот под еврофуру, в т.ч. одни ворота новые подъемные, в 2018 г. произведен ремонт цеха - заменены окна, система отопления).
Есть возможность арендовать офисные помещения в административном здании до 1000 кв.м на 2 этаже (ремонт будет выполнен под арендатора).

Параметры производственно-складского помещения:
- 2 подвесных крана по 10 тонн (в каждом цехе);
- высота потолков - 10 м;
- отопление, водопровод центральные, электрические мощности до 450 кВт (от 2 подстанций, кабель нужно будет подвести арендатору своими силами, расстояние до подстанции 100 метров, сейчас проложен кабель на 50 кВт;
- полы бетонные;
- температурный режим до +16С;
- имеются встроенные офисно-бытовые помещения внутри цеха (рассматривается их демонтаж для увеличения площади цеха).
Собственник готов улучшить состояние помещения под арендатора, в частности, залить антипылевые полы (арендная ставка в этом случае - предмет переговоров).

На территории есть железнодорожный тупик.

Юридический аспект
Собственник юридическое лицо. Обременения права собственности не зарегистрированы. Предлагается к заключению договор аренды на 11 месяцев с пролонгацией.

Коммерческий аспект
Стоимость аренды 250 рублей за кв.м, НДС входит в стоимость, дополнительно оплачиваются коммунальные услуги (отопление, вода и электроэнергия по счетчикам).



Контактное лицо: Марина Сергеевна Белых (Лысенко)

Контактный телефон: +7 (383) 363 18 18 (многоканальный)

e-mail: dn3@dn-nsk.ru

Цех 2400 кв.м
Цех 2400 кв.м Цех 2400 кв.м Цех 2400 кв.м Цех 2400 кв.м Цех 2400 кв.м Цех 2400 кв.м Цех 2400 кв.м

Похожие варианты

Производственно-складское помещение
Ленинский
2000 м2
Производственно-складское помещение
Ленинский
2000 м2
Производственно-складское помещение
Ленинский
2589.8 м2
Производственно-складское помещение
Ленинский
2306.4 м2
Производственно-складское помещение
Кировский
2600 м2