Заявка на оказание услуги

После отправки заявки на указанную электронную почту будет отправлено подтверждение

Фамилия Имя Отчество Заполните поле
Телефон Заполните поле
Email Заполните поле
Текст Заполните поле
Введите символы
Заполните поле
+7 (383) 363 18 18
заказать звонок

Заказать звонок

Имя Заполните поле
Телефон Заполните поле
Комментарий
Введите символы
Заполните поле
ООО «Деловой Новосибирск»
ИНН 5406374623
630102, г. Новосибирск, ул. Кирова, 50, офис 25/1
Тел/факс +7 (383) 363 18 18 (многоканальный)
e-mail: office@dn-nsk.ru; www.dn-nsk.ru

Коммерческая недвижимость. Аренда
$ 81,27     € 94,39 Курс ЦБ на 24.10.2025

ВАРИАНТ №А022484-ПС
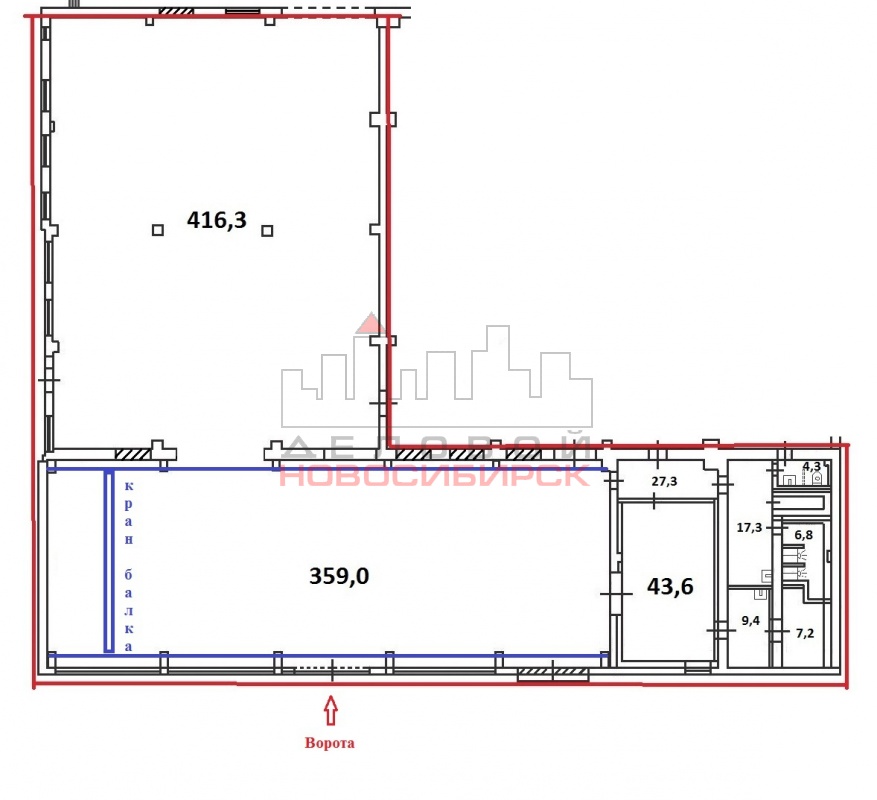
Тип помещения Производственно-складское помещение
Город/ посёлок, район Новосибирск. Кировский
Местонахождение/ адрес ул. Петухова
Стоимость 200 Р / м2
Общая площадь 893 м2
Этаж 1
Этажность 3

Описание:

Предлагается в аренду отапливаемое складское помещение общей площадью 893 кв.м. Склад состоит из двух помещений, объединенных между собой большим проемом 6х6 м, пол бетонный беспылевой, высота потолка переменная от 7 до 10 м, в части с высотой потолка 10 м установлена кран-балка грузоподъемностью до 3 тонн, одни ворота под еврофуру, организованы душевые и с/узел.  Коммуникации - центральные сети, э/мощности до 500 кВт. 

Удобная транспортная развязка: 500 м от остановки общественного транспорта, 10 минут езды на автомобиле до центра левобережья и станции метро «Площадь Маркса». 

Стоимость 200 руб./кв.м. Коммунальные услуги оплачиваются отдельно.

Имеются офисные помещения площадью до 360 кв.м (2 и 3 этажи офисного здания, расположенном в 5 минутах пешим ходом от склада). 

Собственник физическое лицо, возможен договор аренды от ИП. Имеет место обеспечительный платеж в размере месячной арендной платы.



Контактное лицо: Белых Дмитрий Валерьевич

Контактный телефон: +7 (383) 363 18 18 (многоканальный)

e-mail: dn5@dn-nsk.ru


Похожие варианты

Производственно-складское помещение
Ленинский
800 м2
Производственно-складское помещение
Бердск
1072 м2
Производственно-складское помещение
Искитим
1072 м2
Производственно-складское помещение
Бердск
963.4 м2
Производственно-складское помещение
Бердск
999.4 м2