Заявка на оказание услуги

После отправки заявки на указанную электронную почту будет отправлено подтверждение

Фамилия Имя Отчество Заполните поле
Телефон Заполните поле
Email Заполните поле
Текст Заполните поле
Введите символы
Заполните поле
+7 (383) 363 18 18
заказать звонок

Заказать звонок

Имя Заполните поле
Телефон Заполните поле
Комментарий
Введите символы
Заполните поле
ООО «Деловой Новосибирск»
ИНН 5406374623
630102, г. Новосибирск, ул. Кирова, 50, офис 25/1
Тел/факс +7 (383) 363 18 18 (многоканальный)
e-mail: office@dn-nsk.ru; www.dn-nsk.ru

Коммерческая недвижимость. Аренда
$ 80,97     € 94,08 Курс ЦБ на 25.10.2025

ВАРИАНТ №А020125-У
Тип помещения Универсальное помещение
Город/ посёлок, район Новосибирск. Заельцовский
Местонахождение/ адрес ул. Дачная
Стоимость 500 Р / м2
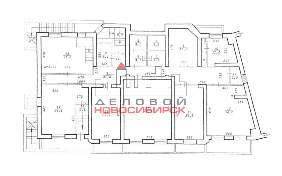
Общая площадь 303 м2
Этаж -1
Этажность 14

Описание:

Предлагается в аренду универсальное помещение, расположенное в цокольном этаже административной части жилого дома. 7 минут пешим ходом до площади Калинина и станции метрополитена. Общая площадь 303 кв.м., 2 отдельных входа, кабинетная система, 2 с/узла, высота потолков 4 м., окна расположены в приямках, э/мощность 15 кВт. Потолок армстронг, на полу керамическая плитка, на стенах обои под покраску, установлена охранно-пожарная сигнализация, приточно-вытяжная вентиляция, телефон, интернет, видеодомофон, система видеонаблюдения. Стоимость 500 руб./кв.м., коммунальные услуги оплачиваются дополнительно. Собственник физические лицо.



Контактное лицо: Специалист

Контактный телефон: +7 (383) 363 18 18 (многоканальный)

e-mail: office@dn-nsk.ru


Похожие варианты

Универсальное помещение
Калининский
300 м2
Универсальное помещение
Ленинский
208.5 м2
Универсальное помещение
Ленинский
218 м2
Универсальное помещение
Ленинский
256.7 м2
Универсальное помещение
Октябрьский
265 м2