Заявка на оказание услуги

После отправки заявки на указанную электронную почту будет отправлено подтверждение

Фамилия Имя Отчество Заполните поле
Телефон Заполните поле
Email Заполните поле
Текст Заполните поле
Введите символы
Заполните поле
+7 (383) 363 18 18
заказать звонок

Заказать звонок

Имя Заполните поле
Телефон Заполните поле
Комментарий
Введите символы
Заполните поле
ООО «Деловой Новосибирск»
ИНН 5406374623
630102, г. Новосибирск, ул. Кирова, 50, офис 25/1
Тел/факс +7 (383) 363 18 18 (многоканальный)
e-mail: office@dn-nsk.ru; www.dn-nsk.ru

Коммерческая недвижимость. Аренда
$ 81,35     € 94,67 Курс ЦБ на 22.10.2025

ВАРИАНТ №А020087-ПС
Тип помещения Производственно-складское помещение
Город/ посёлок, район Новосибирск. Октябрьский
Местонахождение/ адрес ул. Выборная
Стоимость 350 Р / м2
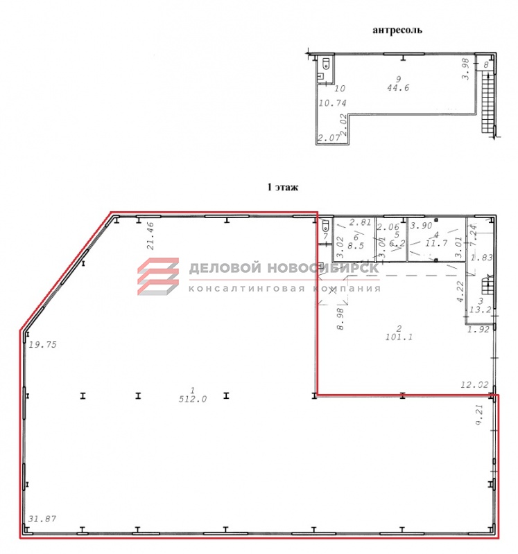
Общая площадь 512 м2
Этаж 1
Этажность 1

Описание:

Предлагается в аренду производственно-складское помещение на ул. Выборная.

Месторасположение

Октябрьский район, первая линия улицы, прилегающей к магистральной. Окружение - производственно-складские базы, СНТ.

Проезд свободный, территория не огорожена.

Характеристика объекта

Отдельно стоящее здание общей площадью 750 кв.м 2017 года постройки, предлагается в аренду часть 512 кв.м, свободная планировка, высота потолка 7 м, пол ровный беспылевой, температурный режим зимой регулируемый (не ниже +18), одни  грузовые ворота 3,7х3,7 м, подъезд фур осложнен, возможна организация офисно-бытовых помещений внутри склад под арендатора.

Будет смонтирована охранно-пожарная сигнализация. Отопление от собственной газовой котельной. Электрическая мощность 100 кВт.

Юридический аспект

Собственник юридическое лицо. НДС не предусмотрен.

Земельный участок под зданием в собственности. Здание не оформлено. 

Регистрация права собственности на здание запланировано на сентябрь-октябрь 2018 г. 

Фактически склад готов к заезду.

Коммерческий аспект

Арендная ставка 350 руб. за кв.м, отопление включено в стоимость, дополнительно оплачиваются э/энергия и вода по счетчикам.



Контактное лицо: Марина Сергеевна Белых (Лысенко)

Контактный телефон: +7 (383) 363 18 18 (многоканальный)

e-mail: dn3@dn-nsk.ru


Похожие варианты

Производственно-складское помещение
Ленинский
800 м2
Производственно-складское помещение
Бердск
868.8 м2
Производственно-складское помещение
Ленинский
324.9 м2
Производственно-складское помещение
Бердск
963.4 м2
Производственно-складское помещение
Бердск
999.4 м2