Заявка на оказание услуги

После отправки заявки на указанную электронную почту будет отправлено подтверждение

Фамилия Имя Отчество Заполните поле
Телефон Заполните поле
Email Заполните поле
Текст Заполните поле
Введите символы
Заполните поле
+7 (383) 363 18 18
заказать звонок

Заказать звонок

Имя Заполните поле
Телефон Заполните поле
Комментарий
Введите символы
Заполните поле
ООО «Деловой Новосибирск»
ИНН 5406374623
630102, г. Новосибирск, ул. Кирова, 50, офис 25/1
Тел/факс +7 (383) 363 18 18 (многоканальный)
e-mail: office@dn-nsk.ru; www.dn-nsk.ru

Коммерческая недвижимость. Аренда
$ 81,35     € 94,67 Курс ЦБ на 22.10.2025

ВАРИАНТ №А006696-У
Тип помещения Универсальное помещение
Город/ посёлок, район Новосибирск. Заельцовский
Местонахождение/ адрес Красный проспект
Стоимость 400 Р / м2
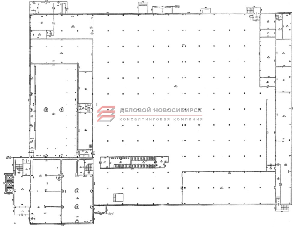
Общая площадь 2000 м2
Этаж 2
Этажность 10

Описание:

Предлагается в аренду универсальное помещение от 2000 кв.м до 5500 кв.м на 2 этаже бизнес-центра. 

Месторасположение  
Вторая линия по Красному проспекту, 5 минут пешим ходом до станции метро «Заельцовская» и площади Калинина.  
Окружение - деловые центры, жилые дома, организации сферы услуг и заведения общественного питания. 

Характеристика объекта  
Общая площадь 5500 кв.м (размеры 72х78 м), имеется три входные группы, организованы 2 зоны разгрузки с въездными воротами (высота 3,5 м, ширина 3 м). Возможен подъезд еврофур, заезд автомобилей Газель внутрь помещения. Высота потолка (чистая) 6 м, высота до смонтированного потолка 3,5 м, шаг колонн 6х18 м, панорамное остекление с двух сторон помещения.  
Состояние: под самоотделку, требуется ремонт. Пол - бетонная стяжка, окна – пластиковые стеклопакеты, потолок - металлические листы, установлены софитные лампы, на стенах - гипсокартон.  
Коммуникации – центральные сети, разрешенная электрическая мощность на здание до 1 мВт.  
Осуществляется круглосуточная охрана территории, въезд по пропускам. Организована парковка на 50 автомобилей. 

Варианты использования  
Для размещения бэк-офиса крупной компании, фитнес-клуба, спортивного комплекса, торгового, развлекательного центров.

Юридический аспект 
Собственник юридическое лицо, работает с НДС.

Коммерческий аспект 
Стоимость 400 руб./кв.м, коммунальные услуги за тепло включены, вода и электроэнергия оплачиваются дополнительно по показаниям приборов учета. 
Рассматривается деление площади пополам для двух арендаторов. Арендные каникулы и ремонт в счет аренды помещения по договоренности с собственником. 



Контактное лицо: Дмитрий Валерьевич Белых

Контактный телефон: +7 (383) 363 18 18 (многоканальный)

e-mail: dn5@dn-nsk.ru

Видео

Похожие варианты

Универсальное помещение
Кировский
1932 м2