Заявка на оказание услуги

После отправки заявки на указанную электронную почту будет отправлено подтверждение

Фамилия Имя Отчество Заполните поле
Телефон Заполните поле
Email Заполните поле
Текст Заполните поле
Введите символы
Заполните поле
+7 (383) 363 18 18
заказать звонок

Заказать звонок

Имя Заполните поле
Телефон Заполните поле
Комментарий
Введите символы
Заполните поле
ООО «Деловой Новосибирск»
ИНН 5406374623
630102, г. Новосибирск, ул. Кирова, 50, офис 25/1
Тел/факс +7 (383) 363 18 18 (многоканальный)
e-mail: office@dn-nsk.ru; www.dn-nsk.ru

Коммерческая недвижимость
$ 81,36     € 94,38 Курс ЦБ на 21.10.2025

ВАРИАНТ №А006815-Т
Тип помещения Торговое помещение
Город/ посёлок, район Новосибирск. Дзержинский
Местонахождение/ адрес ул. Бориса Богаткова (ориентир)
Стоимость 600 Р / м2
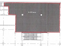
Общая площадь 253 м2

Описание:

Предлагается в аренду помещение 253 кв.м на цокольном этаже торгового центра у выхода из метрополитена под магазин детских товаров, игрушек, канцелярию, спортивной одежды/питания, товаров для дома. 

Месторасположение  
Дзержинский район, ориентир - ул. Бориса Богаткова, первая линия, высокий автомобильный и пешеходный трафики, близость метрополитена и остановок общественного транспорта.  
Большая удобная парковка.  
Окружение - густонаселенный жилой массив, торговые центры.

Характеристики объекта  
Цокольный этаж (окна отсутствуют). Общая площадь помещения 253 кв.м, свободная планировка, выполнен ремонт (пол - линолеум, стены - покрашены, потолок без отделки), имеется освещение, пожарная сигнализация, вход из торгового центра,
высота потолка 2,7 м, с/узел общий на этаже, электрическая мощность выделяется по запросу арендатора. 

Юридический аспект  
Собственник юридическое лицо, договор аренды на 11 месяцев с пролонгацией. 

Коммерческий аспект 
Арендная ставка - 600 руб./кв.м, дополнительно оплачиваются  коммунальные услуги и НДС.
Предусмотрен обеспечительный платеж в размере месячной арендной платы. 
Компания "Деловой Новосибирск" - официальный представитель собственника. Без комиссии для арендатора!



Контактное лицо: Марина Сергеевна Белых (Лысенко)

Контактный телефон: +7 (383) 363 18 18 (многоканальный)

e-mail: dn3@dn-nsk.ru


Похожие варианты


Октябрьский
106 м2

Октябрьский
113.9 м2

Калининский
240 м2

Калининский
240 м2

Центральный
165.1 м2