Заявка на оказание услуги

После отправки заявки на указанную электронную почту будет отправлено подтверждение

Фамилия Имя Отчество Заполните поле
Телефон Заполните поле
Email Заполните поле
Текст Заполните поле
Введите символы
Заполните поле
+7 (383) 363 18 18
заказать звонок

Заказать звонок

Имя Заполните поле
Телефон Заполните поле
Комментарий
Введите символы
Заполните поле
ООО «Деловой Новосибирск»
ИНН 5406374623
630102, г. Новосибирск, ул. Кирова, 50, офис 25/1
Тел/факс +7 (383) 363 18 18 (многоканальный)
e-mail: office@dn-nsk.ru; www.dn-nsk.ru

Коммерческая недвижимость
$ 81,27     € 94,39 Курс ЦБ на 24.10.2025

ВАРИАНТ №А004178-Т
Тип помещения Торговое помещение
Город/ посёлок, район Новосибирск. Калининский
Местонахождение/ адрес ул. Богдана Хмельницкого (ориентир)
Стоимость 1 300 Р / м2
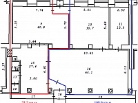
Общая площадь 108 м2
Этаж 1
Этажность 5

Описание:

Предлагается в аренду торговое помещение по 1 линии крупной магистрали, хороший пешеходный и автомобильный трафики, рядом остановка общественного транспорта. В наличии парковочный карман
1 этаж жилого дома, общая площадь 180,7 кв.м (сейчас разделено на 2 самостоятельных помещения  - 72,7 кв.м и 108,0 кв.м, готовы сдавать  раздельно или целиком), отдельный вход с магистрали и со двора, витражное остекление, высота потолка 3,5 м, выполнен ремонт, имеется с/узел, э/мощности 20 кВт, охранно-пожарная сигнализация, телефон, интернет. 
Собственник юридическое лицо. Цена 1300 руб./кв.м, торг возможен, коммунальные услуги оплачиваются дополнительно. Долгосрочный договор аренды приветствуется. 
Помещение подходит под магазин товаров для дома, косметической продукции, тканей, электротехнической продукции и т.п., а также для отделения банка, страховой компании.



Контактное лицо: Лысенко Марина Сергеевна

Контактный телефон: +7 (383) 363 18 18 (многоканальный)

e-mail: dn3@dn-nsk.ru


Похожие варианты


Октябрьский
106 м2

Октябрьский
113.9 м2

Калининский
240 м2

Калининский
240 м2

Центральный
165.1 м2