Заявка на оказание услуги

После отправки заявки на указанную электронную почту будет отправлено подтверждение

Фамилия Имя Отчество Заполните поле
Телефон Заполните поле
Email Заполните поле
Текст Заполните поле
Введите символы
Заполните поле
+7 (383) 363 18 18
заказать звонок

Заказать звонок

Имя Заполните поле
Телефон Заполните поле
Комментарий
Введите символы
Заполните поле
ООО «Деловой Новосибирск»
ИНН 5406374623
630102, г. Новосибирск, ул. Кирова, 50, офис 25/1
Тел/факс +7 (383) 363 18 18 (многоканальный)
e-mail: office@dn-nsk.ru; www.dn-nsk.ru

Коммерческая недвижимость. Продажа
$ 80,98     € 94,58 Курс ЦБ на 18.10.2025

ВАРИАНТ №П024241-У
Тип помещения Универсальное помещение
Город/ посёлок, район Новосибирск. Октябрьский
Местонахождение/ адрес ул. Большевистская
Стоимость Р$
13 500 000 Р128 888 €142 300 $
47 974 Р / м2461 € / м2510 $ / м2
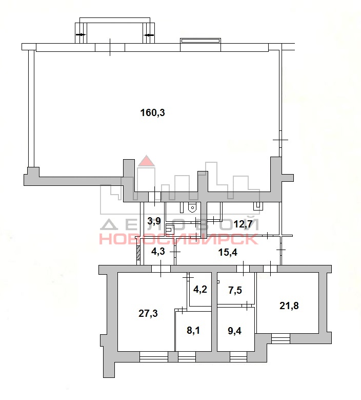
Общая площадь 281.4 м2
Этаж 1
Этажность 9

Описание:

Предлагается к продаже помещение универсального назначения под выставочный зал, сервисный центр и др. 

Месторасположение 
Первая линия активной магистрали - ул. Большевистская. Большой автомобильный трафик. 250 метров до остановки общественного транспорта.  
Окружение - жилые дома, производственно-складские здания. 
Перед зданием организована парковка. 

Характеристики объекта 
1 этаж жилого дома, общая площадь 281,4 кв.м, в т.ч. торговый зал 160 кв.м, подсобные помещения 121,4 кв.м. Высота потолка 3,5 м. Помещение в стадии реконструкции: замена витражей, ремонт входной группы, организация второго входа с первой линии и запасного входа со двора, внутренняя отделка. Собственник готов передать помещение арендатору под чистовую отделку.  
Коммуникации все центральные, электрическая мощность до 30 кВт. 

Юридический аспект 
Собственник физическое лицо. Договор аренды от ИП. Долгосрочная аренда приветствуется.

Коммерческий аспект 
Стоимость объекта 13 500 000 рублей.



Контактное лицо: Марина Сергеевна Белых (Лысенко)

Контактный телефон: +7 (383) 363 18 18 (многоканальный)

e-mail: dn3@dn-nsk.ru


Похожие варианты

Универсальное помещение
Кировский
231.1 м2
Универсальное помещение
Ленинский
235.3 м2
Универсальное помещение
Кировский
291 м2
Универсальное помещение
Октябрьский
232.3 м2
Универсальное помещение
Октябрьский
260 м2