Заявка на оказание услуги

После отправки заявки на указанную электронную почту будет отправлено подтверждение

Фамилия Имя Отчество Заполните поле
Телефон Заполните поле
Email Заполните поле
Текст Заполните поле
Введите символы
Заполните поле
+7 (383) 363 18 18
заказать звонок

Заказать звонок

Имя Заполните поле
Телефон Заполните поле
Комментарий
Введите символы
Заполните поле
ООО «Деловой Новосибирск»
ИНН 5406374623
630102, г. Новосибирск, ул. Кирова, 50, офис 25/1
Тел/факс +7 (383) 363 18 18 (многоканальный)
e-mail: office@dn-nsk.ru; www.dn-nsk.ru

Коммерческая недвижимость. Продажа
$ 80,89     € 93,38 Курс ЦБ на 02.11.2025

ВАРИАНТ №П022684-Т
Тип помещения Универсальное помещение
Город/ посёлок, район Новосибирск. Железнодорожный
Местонахождение/ адрес ул. Челюскинцев (ориентир)
Стоимость Р$
32 427 500 Р313 402 €349 764 $
85 000 Р / м2825 € / м2924 $ / м2
Общая площадь 381.5 м2
Этаж 2
Этажность 2

Описание:

Предлагаются к продаже универсальные помещение общей площадью 783,3 кв.м в новом жилом комплексе бизнес-класса в центральной части города. Удобная транспортная развязка, в непосредственной близости остановки общественного транспорта, рядом большой жилой массив. Большая парковка на 150 автомобилей, 10 минут пешим ходом до станции метро и главной улицы города - Красный проспект.

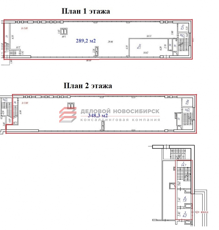
1 этаж площадью 373,4 кв.м, два отдельных входа - со стороны двора и общий вход на два этажа непосредственно с улицы, высота потолка 3 м, в настоящее время разделено на два помещения: зал свободной планировки 289,2 кв.м с с/узлами и подсобными помещениями и с витражным остеклением со стороны магистральной улицы и помещение 43,1 кв.м с собственным с/узлом и отдельным входом со стороны двора. 

2 этаж площадью 381,5 кв.м, высота потолка 3 м, зал свободной планировки площадью 348,3 кв.м, с/узел, витражное остекление, два входа из общих входных групп на 1 этаже. Входная группа общей площадью 28,4 кв.м. 

Состояние ремонта - под самоотделку, выполнена разводка основных коммуникаций в том числе система приточно-вытяжной вентиляции. 

Помещения подходят для торговой деятельности, офиса продаж, фитнес-центра и многого другого. 

Рассматривается продажа как целиком 783,3 кв.м по цене 100 000 руб./кв.м, так и поэтажно: 1 этаж площадью 373,4 кв.м по цене 105 000 руб./кв.м; 2 этаж площадью 381,5 кв.м по цене 85 000 руб./кв.м. При продаже поэтажно входная группа (28,4 кв.м) будет оформляться в общую долевую собственность между собственниками 1 и 2 этажей. В настоящее время в данном помещении собственник делает ремонт.  

Помещения интересны как для ведения собственного бизнеса, так и для сдачи в аренду. Собственник помещений физическое лицо.



Контактное лицо: Дмитрий Валерьевич Белых

Контактный телефон: +7 (383) 363 18 18 (многоканальный)

e-mail: dn5@dn-nsk.ru


Похожие варианты

Универсальное помещение
Дзержинский
375.3 м2
Универсальное помещение
Советский
387.54 м2
Универсальное помещение
Советский
371.02 м2