Заявка на оказание услуги

После отправки заявки на указанную электронную почту будет отправлено подтверждение

Фамилия Имя Отчество Заполните поле
Телефон Заполните поле
Email Заполните поле
Текст Заполните поле
Введите символы
Заполните поле
+7 (383) 363 18 18
заказать звонок

Заказать звонок

Имя Заполните поле
Телефон Заполните поле
Комментарий
Введите символы
Заполните поле
ООО «Деловой Новосибирск»
ИНН 5406374623
630102, г. Новосибирск, ул. Кирова, 50, офис 25/1
Тел/факс +7 (383) 363 18 18 (многоканальный)
e-mail: office@dn-nsk.ru; www.dn-nsk.ru

Коммерческая недвижимость. Аренда
$ 81,35     € 94,67 Курс ЦБ на 22.10.2025

ВАРИАНТ №А025292-О
Тип помещения Офисное помещение
Город/ посёлок, район Новосибирск. Ленинский
Местонахождение/ адрес Карла Маркса проспект
Стоимость 750 Р / м2
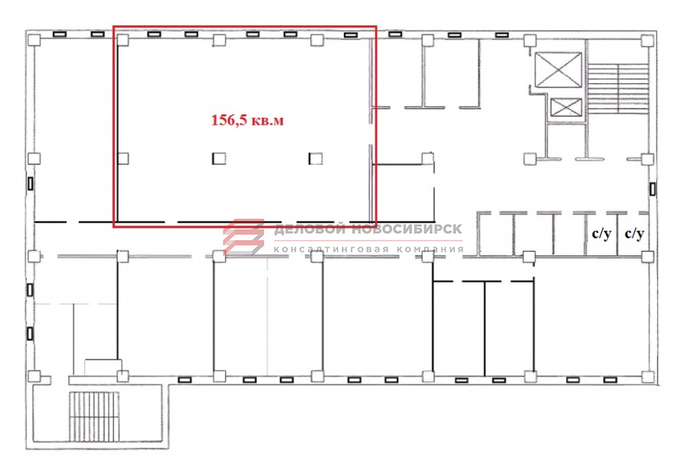
Общая площадь 156.5 м2
Этаж 5
Этажность 7

Описание:

Предлагается в аренду офисное помещение в 200 метрах от станции метро «Студенческая» и остановок общественного транспорта. Рядом располагаются административные здания, магазины, банки, кофейни, кондитерские, рестораны быстрого питания, учебные заведения, культурно-развлекательный центр. 

5 этаж административного здания 2009 года постройки, общая площадь 156,5 кв.м, помещение свободной планировки, 3 отдельных входа из коридора, один - из холла на этаже, за счет чего возможно уменьшение площади, с/узел общий на этаже, высота потолка 3,2 метра, установлены системы видеонаблюдения, пожарной сигнализации, приточно-вытяжной вентиляции. 

Круглосуточная охрана здания, режим работы с 7:00 до 22:00 (иное время возможно по договоренности с охраной за дополнительную оплату). Парковка стихийная у здания, но выдается один брелок от парковки за шлагбаумом с закреплением места. 

Стоимость аренды 750 руб./кв.м, коммунальные услуги включены, дополнительно оплачиваются связь и электричество. Собственник юридическое лицо, работает на упрощенной системе налогообложения.



Контактное лицо: Специалист

Контактный телефон: +7 (383) 363 18 18 (многоканальный)

e-mail: office@dn-nsk.ru


Похожие варианты

Офисное помещение
Октябрьский
228.4 м2
Офисное помещение
Октябрьский
164.6 м2
Офисное помещение
Центральный
89.8 м2
Офисное помещение
Октябрьский
139.9 м2
Офисное помещение
Октябрьский
160.1 м2