Заявка на оказание услуги

После отправки заявки на указанную электронную почту будет отправлено подтверждение

Фамилия Имя Отчество Заполните поле
Телефон Заполните поле
Email Заполните поле
Текст Заполните поле
Введите символы
Заполните поле
+7 (383) 363 18 18
заказать звонок

Заказать звонок

Имя Заполните поле
Телефон Заполните поле
Комментарий
Введите символы
Заполните поле
ООО «Деловой Новосибирск»
ИНН 5406374623
630102, г. Новосибирск, ул. Кирова, 50, офис 25/1
Тел/факс +7 (383) 363 18 18 (многоканальный)
e-mail: office@dn-nsk.ru; www.dn-nsk.ru

Коммерческая недвижимость. Аренда
$ 81,35     € 94,67 Курс ЦБ на 22.10.2025

ВАРИАНТ №А025074-Т
Тип помещения Торговое помещение
Город/ посёлок, район Новосибирск. Заельцовский
Местонахождение/ адрес ул. Кропоткина
Стоимость 1 500 Р / м2
Общая площадь 100 м2
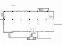
Этаж -1
Этажность 4

Описание:

Предлагается в аренду торговое помещение площадью 600 кв.м в административном здании. 

Первая линия домов, цокольный этаж (имеются окна в приямках), планировка свободная колонного типа, основная входная группа непосредственно с улицы и два разгрузочных входа со стороны двора, высота потолка 3 м

Выполнен новый ремонт, на полу керамогранит, потолок и стены покрашены. Коммуникации - центральные сети, электрическая мощность 40 кВт (планируется увеличение до 80 кВт). 

Развитая окружающая инфраструктура, высокий пешеходный и автомобильный трафики, напротив входа организована парковка. Рядом большой жилой массив.

Стоимость аренды 1500 руб./кв.м, коммунальные услуги оплачиваются дополнительно. Предусмотрен обеспечительный платеж в размере месячной арендной платы. Собственник физическое лицо, договор аренды от ИП.



Контактное лицо: Дмитрий Валерьевич Белых

Контактный телефон: +7 (383) 363 18 18 (многоканальный)

e-mail: dn5@dn-nsk.ru


Похожие варианты

Торговое помещение
Октябрьский
106 м2
Торговое помещение
Железнодорожный
102.4 м2
Торговое помещение
Октябрьский
113.9 м2
Торговое помещение
Октябрьский
57.8 м2
Торговое помещение
Центральный
62.2 м2