Заявка на оказание услуги

После отправки заявки на указанную электронную почту будет отправлено подтверждение

Фамилия Имя Отчество Заполните поле
Телефон Заполните поле
Email Заполните поле
Текст Заполните поле
Введите символы
Заполните поле
+7 (383) 363 18 18
заказать звонок

Заказать звонок

Имя Заполните поле
Телефон Заполните поле
Комментарий
Введите символы
Заполните поле
ООО «Деловой Новосибирск»
ИНН 5406374623
630102, г. Новосибирск, ул. Кирова, 50, офис 25/1
Тел/факс +7 (383) 363 18 18 (многоканальный)
e-mail: office@dn-nsk.ru; www.dn-nsk.ru

Коммерческая недвижимость. Аренда
$ 81,35     € 94,67 Курс ЦБ на 22.10.2025

ВАРИАНТ №А024987-О
Тип помещения Офисное помещение
Город/ посёлок, район Новосибирск. Октябрьский
Местонахождение/ адрес ул. Гурьевская (ориентир)
Стоимость 400 Р / м2
Общая площадь 700 м2
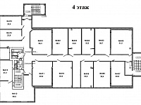
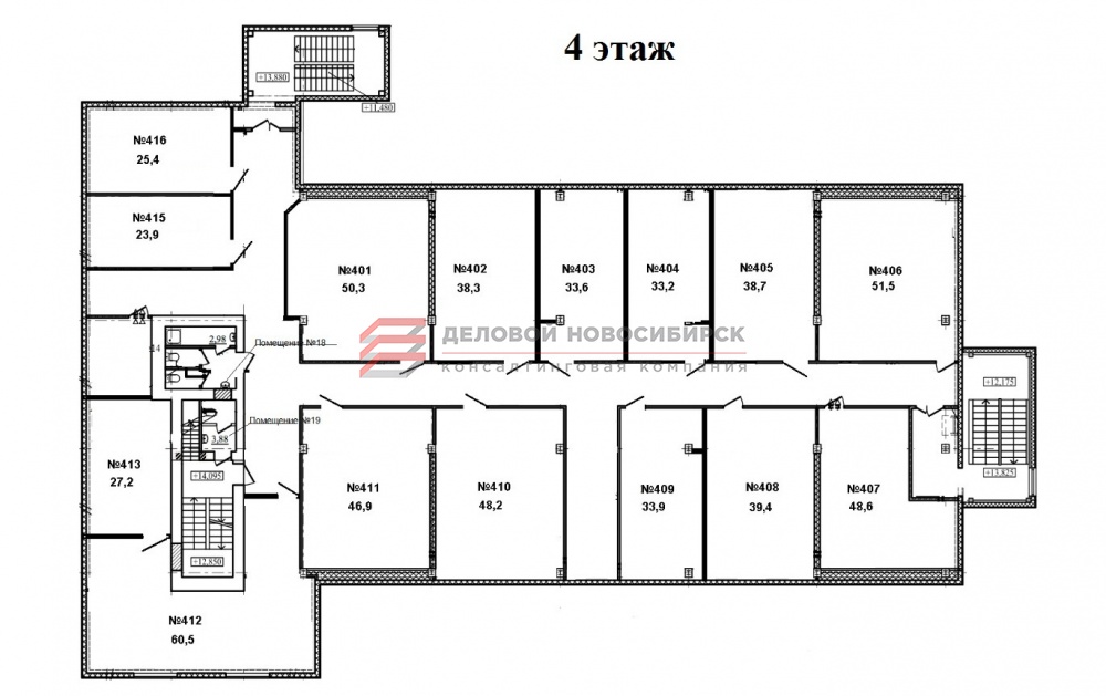
Этаж 4
Этажность 4

Описание:

Предлагается в аренду офисное помещение в административном здании, расположенном на огороженной охраняемой территории. До остановок общественного транспорта 5-10 минут пешим ходом. 

Этаж 4 (мансардный), общая площадь 700 кв.м, планировка кабинетная коридорного типа (15 кабинетов), выполнен хороший ремонт, остановлены охранная и пожарная сигнализации. Ведется работа по согласованию установки лифта в здании. 

Рассматриваются варианты деления от 150 кв.м

Стоимость аренды этажа целиком – 400 руб./кв.м, стоимость аренды при делении - 450 руб./кв.м, коммунальные услуги включены, дополнительно оплачиваются э/энергия, вода и уборка. Предусмотрен обеспечительный платеж в размере месячной арендной платы. 

Собственник физическое лицо, договор аренды от юридического лица (Управляющая компания), работает на упрощенной системе налогообложения.



Контактное лицо: Дмитрий Валерьевич Белых

Контактный телефон: +7 (383) 363 18 18 (многоканальный)

e-mail: dn5@dn-nsk.ru


Похожие варианты

Офисное помещение
Ленинский
650 м2
Офисное помещение
Ленинский
676.4 м2
Офисное помещение
Кировский
750 м2
Офисное помещение
Центральный
642 м2
Офисное помещение
Ленинский
780 м2