Заявка на оказание услуги

После отправки заявки на указанную электронную почту будет отправлено подтверждение

Фамилия Имя Отчество Заполните поле
Телефон Заполните поле
Email Заполните поле
Текст Заполните поле
Введите символы
Заполните поле
+7 (383) 363 18 18
заказать звонок

Заказать звонок

Имя Заполните поле
Телефон Заполните поле
Комментарий
Введите символы
Заполните поле
ООО «Деловой Новосибирск»
ИНН 5406374623
630102, г. Новосибирск, ул. Кирова, 50, офис 25/1
Тел/факс +7 (383) 363 18 18 (многоканальный)
e-mail: office@dn-nsk.ru; www.dn-nsk.ru

Коммерческая недвижимость. Аренда
$ 81,35     € 94,67 Курс ЦБ на 22.10.2025

ВАРИАНТ №А024886-У
Тип помещения Универсальное помещение
Город/ посёлок, район Новосибирск. Октябрьский
Местонахождение/ адрес ул. Добролюбова (ориентир)
Стоимость 300 Р / м2
Общая площадь 333 м2
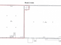
Этаж 2
Этажность 2

Описание:

Предлагается в аренду помещение под выставочный зал, сервисный центр, танцевальную школу, спортивный зал.

Месторасположение 
Октябрьский район, третья линия от магистральной дороги, первая линия внутриквартальной дороги, 250 метров до остановки общественного транспорта, 1,2 км до станции метрополитена, свободный подъезд, окружение - жилые дома и складские здания.

Характеристика объекта
1 и 2 этажи административного здания, общая площадь помещения 661,0 кв.м: 
- 1 этаж 328,0 кв.м, свободная планировка, высота потолка 3,5 м, этаж отремонтирован; 
- 2 этаж 333,0 кв.м, свободная планировка, высота потолка 2,95 м, этаж под самоотделку, собственник готов выполнить ремонт под арендатора или предоставить арендные каникулы.  

Юридический аспект 
Собственник юридическое лицо. Обременения права собственности не зарегистрированы. Возможен долгосрочный договор аренды.

Коммерческий аспект 
Арендная плата за два этажа 250 000 рублей в месяц.
Арендная плата за 1 этаж 150 000 рублей в месяц.
Арендная плата за 2 этаж 100 000 рублей в месяц.
Коммунальные услуги оплачиваются дополнительно. НДС не предусмотрен.



Контактное лицо: Марина Сергеевна Белых (Лысенко)

Контактный телефон: +7 (383) 363 18 18 (многоканальный)

e-mail: dn3@dn-nsk.ru


Похожие варианты

Универсальное помещение
Калининский
300 м2
Универсальное помещение
Ленинский
256.7 м2
Универсальное помещение
Ленинский
410 м2
Универсальное помещение
Ленинский
257 м2
Универсальное помещение
Октябрьский
252.5 м2