Заявка на оказание услуги

После отправки заявки на указанную электронную почту будет отправлено подтверждение

Фамилия Имя Отчество Заполните поле
Телефон Заполните поле
Email Заполните поле
Текст Заполните поле
Введите символы
Заполните поле
+7 (383) 363 18 18
заказать звонок

Заказать звонок

Имя Заполните поле
Телефон Заполните поле
Комментарий
Введите символы
Заполните поле
ООО «Деловой Новосибирск»
ИНН 5406374623
630102, г. Новосибирск, ул. Кирова, 50, офис 25/1
Тел/факс +7 (383) 363 18 18 (многоканальный)
e-mail: office@dn-nsk.ru; www.dn-nsk.ru

Коммерческая недвижимость. Аренда
$ 81,35     € 94,67 Курс ЦБ на 22.10.2025

ВАРИАНТ №А023086-О
Тип помещения Офисное помещение
Город/ посёлок, район Новосибирск. Центральный
Местонахождение/ адрес Площадь Ленина (ориентир)
Стоимость 850 Р / м2
Общая площадь 795.5 м2
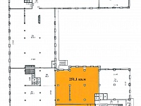
Этаж 9
Этажность 20

Описание:

Предлагаются в аренду офисные помещения на разных этажах современного бизнес-центра.

4 этаж общей площадью 1549,0 кв.м, витражное остекление, планировка свободная, колонного типа, большие витражные окна, высота потолка 3,3 м, под самоотделку, возможно деление от 500 кв.м;

5 этаж общей площадью 480,7 кв.м, состоит из двух помещений - 243,2 кв.м и 237,5 кв.м, свободной планировки, колонного типа, возможно объединить в одно большое помещение, высота потолка 3,05 м, состояние ремонта - под самоотделку;

6 этаж общей площадью 494,1 кв.м, состоит из двух помещений - 243,2 кв.м и 250,9 кв.м, возможно объединить, свободной планировки, колонного типа, высота потолка 3,05 м, состояние ремонта - под самоотделку;

7 этаж общей площадью 495,1 кв.м, состоит из двух помещений - 251,1 кв.м и 244,0 кв.м, свободной планировки, колонного типа, возможно объединить, высота потолка 3,05 м, состояние ремонта под самоотделку;

8 этаж общей площадью 817,8 кв.м, состоит из трех помещений - 322,9 кв.м, 251,1 кв.м и 243,8 кв.м, свободной планировки, колонного типа, все помещения возможно объединить в одно большое, высота потолка 3,05 м, остояние ремонта под самоотделку;

9 этаж площадью 795,5 кв.м, состоит из трех помещений - 300,6 кв.м, 251,3 кв.м, 243,6 кв.м, планировки свободные, колонного типа, в помещении 322,9 кв.м выделены подсобные помещения, все помещения возможно объединить, высота потолка 3,05 м, состояние ремонта - под самоотделку.

Здание оснащено четырьмя скоростными лифтами, системами центрального кондиционирования с функцией охлаждения и подогрева подаваемого воздуха, водяной сплинкерной автоматической системой пожаротушения, противопожарной сигнализацией, системами оповещения и дымоудаления, а также наружнего видеонаблюдения.

Развитая окружающая инфраструктура, в непосредственной близости станция метро. В здании работает кафе. В шаговой доступности супермаркеты, отделения банков, рестораны и многое другое.

Стоимость аренды 850 руб./кв.м, НДС входит в стоимость аренды, коммунальные услуги и эксплуатационные расходы (75 руб./кв.м в месяц) оплачиваются дополнительно. 



Контактное лицо: Белых Дмитрий Валерьевич

Контактный телефон: +7 (383) 363 18 18 (многоканальный)

e-mail: dn5@dn-nsk.ru


Похожие варианты

Офисное помещение
Октябрьский
716.6 м2
Офисное помещение
Центральный
780 м2
Офисное помещение
Центральный
812.8 м2
Офисное помещение
Октябрьский
825 м2
Офисное помещение
Железнодорожный
757 м2