Заявка на оказание услуги

После отправки заявки на указанную электронную почту будет отправлено подтверждение

Фамилия Имя Отчество Заполните поле
Телефон Заполните поле
Email Заполните поле
Текст Заполните поле
Введите символы
Заполните поле
+7 (383) 363 18 18
заказать звонок

Заказать звонок

Имя Заполните поле
Телефон Заполните поле
Комментарий
Введите символы
Заполните поле
ООО «Деловой Новосибирск»
ИНН 5406374623
630102, г. Новосибирск, ул. Кирова, 50, офис 25/1
Тел/факс +7 (383) 363 18 18 (многоканальный)
e-mail: office@dn-nsk.ru; www.dn-nsk.ru

Коммерческая недвижимость. Аренда
$ 80,98     € 94,58 Курс ЦБ на 18.10.2025

ВАРИАНТ №А022968-ОСЗ
Тип помещения Здание
Город/ посёлок, район Куйбышев. НСО
Местонахождение/ адрес г. Куйбышев
Стоимость 450 Р / м2
Общая площадь 641.3 м2
Этаж 1
Этажность 2

Описание:

Предлагается в аренду отдельно стоящее двухэтажное здание, расположенное в г. Куйбышев, административном центре Куйбышевского района Новосибирской области, в 315 км от г. Новосибирска, численность населения 44 616 человек (на 2016 год).

В городе имеется ГРЭС, заводы: химический, автозапчастей, железобетонных изделий и конструкций, спиртовой. Также функционируют молочно-консервный, фабрика художественных изделий. 

Характеристика объекта
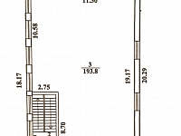
Общая площадь здания 641,3 кв.м, в том числе: 
- подвал 214,7 кв.м, два отдельных входа, тамбур, выставочный зал свободной планировки 211,5 кв.м, высота потолков 3,1 м;
- 1 этаж и 2 этажи по 213,3 кв.м, тамбур, торговый зал 193,8 кв.м, высота потолков 2,7 м, имеются эвакуационные выходы.
Объект под самоотделку, установлена охранная сигнализация, на территории система видеонаблюдения.

Земельный участок 598,0 кв.м, в собственности, территория огорожена, благоустроена. Организована парковка на 15-20 машиномест.

Техническая характеристика
Теплоснабжение, водоснабжение - центральные коммуникации, электрические мощности 15 кВт, интернет - оптиковолоконные линии связи.

Здание находится в исторической части города, построено в соответствующем классическом стиле, идеально сочетается с другими постройками исторического центра и украшает данное место. 

В непосредственной близости располагаются учебные заведения, количество обучающихся более 1000 человек, административные здания,  культурно-развлекательный центр, магазины, банк. Интенсивный автомобильный и пешеходный трафик.

Собственник физическое лицо.

Стоимость аренды 450 руб./кв.м, 288 585 руб./мес., коммунальные услуги обсуждаются. Предоставляются арендные каникулы, рассматриваются встречные предложения, индивидуальный подход к каждому клиенту. Предусмотрен обеспечительный платеж в размере месячной арендной стоимости. Приветствуются долгосрочные отношения.
Возможна аренда цокольного этажа по 600 руб./кв.м, 2 этажа по 500 руб./кв.м.

Варианты использования: торговая, банковская деятельность, оздоровительный, медицинский центр, культурно-развлекательные заведения, предприятия общественного питания.



Контактное лицо: Специалист

Контактный телефон: +7 (383) 363 18 18 (многоканальный)

e-mail: office@dn-nsk.ru


Похожие варианты

Здание
Дзержинский
643.1 м2
Здание
Калининский
778.3 м2
Здание
Заельцовский
653.6 м2
Здание
Октябрьский
736.2 м2
Здание
Железнодорожный
574.5 м2