Заявка на оказание услуги

После отправки заявки на указанную электронную почту будет отправлено подтверждение

Фамилия Имя Отчество Заполните поле
Телефон Заполните поле
Email Заполните поле
Текст Заполните поле
Введите символы
Заполните поле
+7 (383) 363 18 18
заказать звонок

Заказать звонок

Имя Заполните поле
Телефон Заполните поле
Комментарий
Введите символы
Заполните поле
ООО «Деловой Новосибирск»
ИНН 5406374623
630102, г. Новосибирск, ул. Кирова, 50, офис 25/1
Тел/факс +7 (383) 363 18 18 (многоканальный)
e-mail: office@dn-nsk.ru; www.dn-nsk.ru

Коммерческая недвижимость. Аренда
$ 80,97     € 94,08 Курс ЦБ на 25.10.2025

ВАРИАНТ №А021977-Т
Тип помещения Торговое помещение
Город/ посёлок, район Новосибирск. Ленинский
Местонахождение/ адрес Горский микрорайон
Стоимость 1 000 Р / м2
Общая площадь 140 м2
Этаж 1
Этажность 10

Описание:

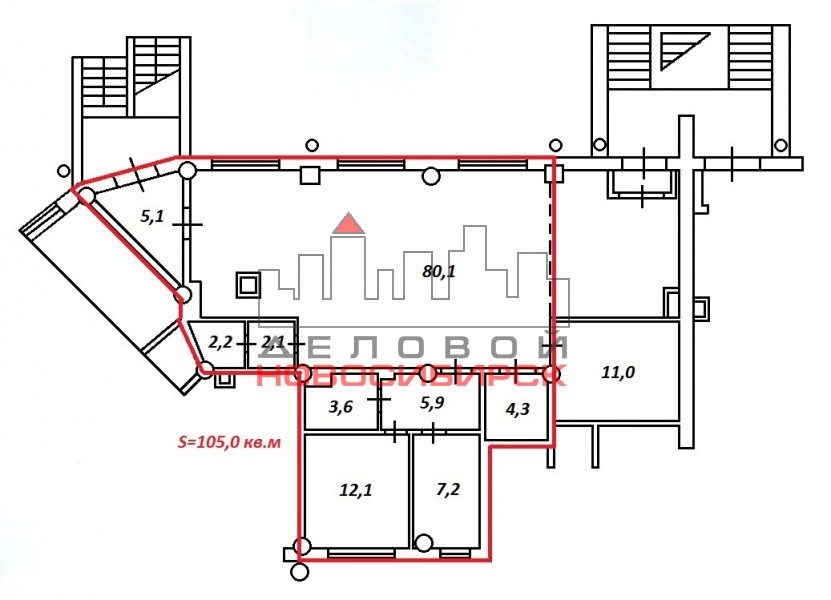
Предлагается в аренду помещение торгового назначения  - под магазин, аптеку, офис продаж, отделение банка, 1 линия, въезд на крупный жилой массив - Горский, активные пешеходный и автомобильный трафики, рядом остановка общественного транспорта. Высокий 1 этаж жилого дома (есть лестница), общая площадь 140 кв.м, возможно деление на 2 площади: 105,0 кв.м (зал 80,0 кв.м.) и 35,0 кв.м (зал 16,0 кв.м), 2 входа с дороги, выполнен ремонт, э/мощность 4,4 кВт, есть с/узел, помещение имеет большие витражные окна. Собственник ФЛ, договор аренды от ИП, долгосрочная аренда приветствуется. Цена при аренде целиком - 1000 руб. за кв.м; цена при аренде отдельно 105,0 кв.м - 1200 руб. за кв.м; цена при аренде отдельно 35,0 кв.м - 1500 руб. за кв.м,  коммунальные услуги оплачиваются дополнительно.



Контактное лицо: Лысенко Марина Сергеевна

Контактный телефон: +7 (383) 363 18 18 (многоканальный)

e-mail: dn3@dn-nsk.ru


Похожие варианты

Торговое помещение
Октябрьский
113.9 м2
Торговое помещение
Октябрьский
151.1 м2
Торговое помещение
Центральный
151.1 м2
Торговое помещение
Железнодорожный
112 м2
Торговое помещение
Железнодорожный
138.3 м2