Заявка на оказание услуги

После отправки заявки на указанную электронную почту будет отправлено подтверждение

Фамилия Имя Отчество Заполните поле
Телефон Заполните поле
Email Заполните поле
Текст Заполните поле
Введите символы
Заполните поле
+7 (383) 363 18 18
заказать звонок

Заказать звонок

Имя Заполните поле
Телефон Заполните поле
Комментарий
Введите символы
Заполните поле
ООО «Деловой Новосибирск»
ИНН 5406374623
630102, г. Новосибирск, ул. Кирова, 50, офис 25/1
Тел/факс +7 (383) 363 18 18 (многоканальный)
e-mail: office@dn-nsk.ru; www.dn-nsk.ru

Коммерческая недвижимость. Аренда
$ 81,35     € 94,67 Курс ЦБ на 22.10.2025

ВАРИАНТ №А020474-У
Тип помещения Универсальное помещение
Город/ посёлок, район Новосибирск. Центральный
Местонахождение/ адрес Площадь Ленина (ориентир)
Стоимость 699 Р / м2
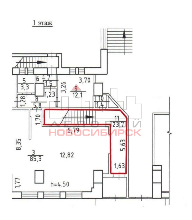
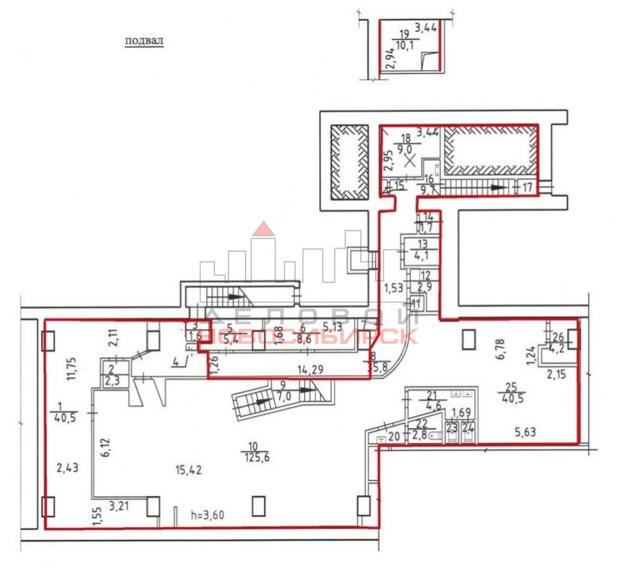
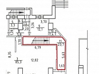
Общая площадь 320.2 м2
Этаж -2
Этажность 10

Описание:

Предлагается в аренду помещение универсального назначения (под заведение общественного питания, магазин, ночной клуб) в самом центре города, с огромным пешеходным и автомобильным трафиками, 200 метров до Площади Ленина и станции метрополитена. 

Общая площадь 320,2 кв.м (2 зала - 125,6 кв.м и 40,5 кв.м, возможно объединение в единый зал ориентировочно до 230 кв.м), подвал (окна отсутствуют) административного здания, вход на уровне 1 этажа (внутренняя лестница вниз), в наличии отдельный вход с 1 линии магистрали и со двора здания для разгрузки. Высота потолка 3,60 м. Выделенные э/мощности  до 50 кВт. Имеется приточно-вытяжная вентиляция, охранно-пожарная сигнализация, с/узел, выполнен ремонт. 

Место на фасаде для размещения рекламы. Организован парковочный карман в 15 м от входа в помещение. 

Собственник ФЛ, договор аренды от ИП. Долгосрочная аренда приветствуется. Стоимость 224 000 руб./мес., коммунальные услуги оплачиваются дополнительно. 



Контактное лицо: Марина Сергеевна Белых (Лысенко)

Контактный телефон: +7 (383) 363 18 18 (многоканальный)

e-mail: dn3@dn-nsk.ru


Похожие варианты

Универсальное помещение
Октябрьский
265 м2
Универсальное помещение
Заельцовский
322.5 м2
Универсальное помещение
Ленинский
410 м2
Универсальное помещение
Ленинский
257 м2
Универсальное помещение
Центральный
245.7 м2