Заявка на оказание услуги

После отправки заявки на указанную электронную почту будет отправлено подтверждение

Фамилия Имя Отчество Заполните поле
Телефон Заполните поле
Email Заполните поле
Текст Заполните поле
Введите символы
Заполните поле
+7 (383) 363 18 18
заказать звонок

Заказать звонок

Имя Заполните поле
Телефон Заполните поле
Комментарий
Введите символы
Заполните поле
ООО «Деловой Новосибирск»
ИНН 5406374623
630102, г. Новосибирск, ул. Кирова, 50, офис 25/1
Тел/факс +7 (383) 363 18 18 (многоканальный)
e-mail: office@dn-nsk.ru; www.dn-nsk.ru

Коммерческая недвижимость. Аренда
$ 81,65     € 94,75 Курс ЦБ на 23.10.2025

ВАРИАНТ №А020220-Т
Тип помещения Торговое помещение
Город/ посёлок, район Новосибирск. Центральный
Местонахождение/ адрес Красный проспект (ориентир)
Стоимость 2 200 Р / м2
Общая площадь 156 м2
Этаж 1
Этажность 5

Описание:

Предлагается в аренду помещение готовое под банковский офис. 

Центральная часть города, 1 линия активной магистрали, 50 метров от выхода из метрополитена, активный пешеходный и автомобильный трафики. Возле здания организованы парковочные места. 

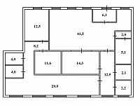
Помещение расположено на 1 этаже жилого дома, общая площадь 156,0 кв.м, свободная планировка, на данный момент установлены стеклянные перегородки, выделен операционный зал 41,5 кв.м, помещения для сотрудников - 29,9 кв.м и 14,3 кв.м, кабинет управляющего 11,6 кв.м, комната переговоров 12,5 кв.м, 2 с/узла, кассовый узел, серверная. 

Один отдельный вход с 1 линии. Установлены новые витражные окна на центральную улицу города в количестве 4 шт. 

В помещении смонтированы система вентиляции, кондиционирования, видеонаблюдения, тепловая завеса. Выполнен современный качественный ремонт: на полу керамогранит/ламинат/ковровое покрытие, на стенах покраска, потолок арсмтронг. 

Цена 2200 руб. за кв.м, готовы рассмотреть встречные предложения, дополнительно оплачиваются коммунальные услуги. 

Деление не рассматривается. Долгосрочная аренда приветствуется. 

Компания ООО "Деловой Новосибирск" - официальный представитель собственника. Комиссия для арендатора - 0%.



Контактное лицо: Лысенко Марина Сергеевна

Контактный телефон: +7 (383) 363 18 18 (многоканальный)

e-mail: dn3@dn-nsk.ru


Похожие варианты

Торговое помещение
Октябрьский
106 м2
Торговое помещение
Железнодорожный
178.3 м2
Торговое помещение
Центральный
166.5 м2
Торговое помещение
Центральный
153.8 м2
Торговое помещение
Центральный
160 м2