Заявка на оказание услуги

После отправки заявки на указанную электронную почту будет отправлено подтверждение

Фамилия Имя Отчество Заполните поле
Телефон Заполните поле
Email Заполните поле
Текст Заполните поле
Введите символы
Заполните поле
+7 (383) 363 18 18
заказать звонок

Заказать звонок

Имя Заполните поле
Телефон Заполните поле
Комментарий
Введите символы
Заполните поле
ООО «Деловой Новосибирск»
ИНН 5406374623
630102, г. Новосибирск, ул. Кирова, 50, офис 25/1
Тел/факс +7 (383) 363 18 18 (многоканальный)
e-mail: office@dn-nsk.ru; www.dn-nsk.ru

Коммерческая недвижимость
$ 81,36     € 94,38 Курс ЦБ на 21.10.2025

ВАРИАНТ №А025821-У
Тип помещения Универсальное помещение
Город/ посёлок, район Новосибирск. Дзержинский
Местонахождение/ адрес Дзержинского проспект (ориентир)
Стоимость 1 000 Р / м2
Общая площадь 167.1 м2
Этаж 1
Этажность 16

Описание:

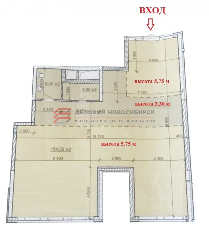
Предлагается в аренду помещение универсального назначения общей площадью 167,1 кв.м, 1 линия домов, первый этаж административной части жилого дома, отдельный вход, витражное остекление, презентабельный фасад, высокие потолки - 5,75 м, что позволяет увеличить площадь помещений примерно на 70 кв.м за счет организации антресоли.

Состояние ремонта: напольное покрытие керамогранит, остальное под самостоятельную отделку. Коммуникации: центральные сети, электрическая мощность 25 кВт, система пожарной сигнализации.

Удобная транспортная развязка, в непосредственной близости остановки общественного транспорта, 5 минут пешим ходом до станции метро.

Помещение подходит для торговой деятельности, офиса продаж, ресторан, салон красоты и многое другое.

Стоимость аренды 1000 руб./кв.м, коммунальные услуги оплачиваются отдельно. Предусмотрен обеспечительный платеж в размере месячной арендной платы. Собственник физическое лицо, договор аренды от ИП. Возможен долгосрочный договор аренды с регистрацией в УФРС.



Контактное лицо: Дмитрий Валерьевич Белых

Контактный телефон: +7 (383) 363 18 18 (многоканальный)

e-mail: dn5@dn-nsk.ru


Похожие варианты


Железнодорожный
89.1 м2

Центральный
26.4 м2

Центральный
439.3 м2

Центральный
58.5 м2

Октябрьский
130 м2