Заявка на оказание услуги

После отправки заявки на указанную электронную почту будет отправлено подтверждение

Фамилия Имя Отчество Заполните поле
Телефон Заполните поле
Email Заполните поле
Текст Заполните поле
Введите символы
Заполните поле
+7 (383) 363 18 18
заказать звонок

Заказать звонок

Имя Заполните поле
Телефон Заполните поле
Комментарий
Введите символы
Заполните поле
ООО «Деловой Новосибирск»
ИНН 5406374623
630102, г. Новосибирск, ул. Кирова, 50, офис 25/1
Тел/факс +7 (383) 363 18 18 (многоканальный)
e-mail: office@dn-nsk.ru; www.dn-nsk.ru

Коммерческая недвижимость
$ 81,65     € 94,75 Курс ЦБ на 23.10.2025

ВАРИАНТ №А025609-О
Тип помещения Офисное помещение
Город/ посёлок, район Новосибирск. Центральный
Местонахождение/ адрес ул. Серебренниковская (ориентир)
Стоимость 650 Р / м2
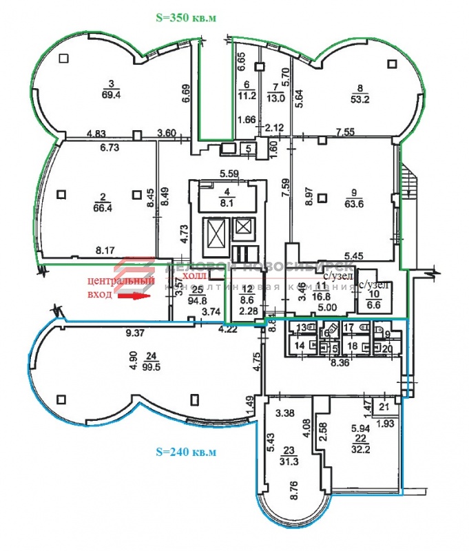
Общая площадь 593.2 м2
Этаж 3
Этажность 12

Описание:

Предлагается в аренду презентабельный офис с витражами в центре города площадью 350 кв.м. Возможно использование также под медицинский центр! 

Месторасположение
Центральный район, ориентир - ул. Серебренниковская, вблизи расположены знаковые объекта города – Театр Оперы и Балета «НОВАТ», Мэрия г. Новосибирска, мультибрендовый универмаг «LUKSE», центральный офис «Сбербанка», гостиница «Hilton» и т.д. 
6-10 минут пешим ходом до станции метрополитена. 

Характеристики объекта 
3 этаж административной части жилого дома, лифт не предусмотрен, центральный вход с первой линии проезжей улицы, общая площадь этажа 593,2 кв.м. Сдается отдельный блок на этаже - 350 кв.м. 
В помещении выполнен качественный ремонт, установлены охранно-пожарная сигнализация, кондиционеры. 

Юридический аспект
Помещение предоставляется в аренду по договору субаренды от ИП. Договор аренды заключен на 5 лет с 2018 года с правом предоставления помещения в субаренду и преимущественным правом выкупа, которое арендатор планирует реализовать в 2019 г. Договор субаренды возможен долгосрочный! 

Коммерческий аспект
Арендная ставка 650 руб./кв.м, все коммунальные платежи оплачиваются дополнительно. НДС не предусмотрен. 
При заключении договора субаренду вносится обеспечительный платеж в размере месячной арендной платы и предоплата за 1-й месяц аренды.



Контактное лицо: Марина Сергеевна Белых (Лысенко)

Контактный телефон: +7 (383) 363 18 18 (многоканальный)

e-mail: dn3@dn-nsk.ru

План 593,2 кв.м План деления

Похожие варианты


Железнодорожный
631.6 м2

Октябрьский
109.2 м2

Центральный
292.6 м2

Центральный
300.6 м2

Железнодорожный
420 м2