Заявка на оказание услуги

После отправки заявки на указанную электронную почту будет отправлено подтверждение

Фамилия Имя Отчество Заполните поле
Телефон Заполните поле
Email Заполните поле
Текст Заполните поле
Введите символы
Заполните поле
+7 (383) 363 18 18
заказать звонок

Заказать звонок

Имя Заполните поле
Телефон Заполните поле
Комментарий
Введите символы
Заполните поле
ООО «Деловой Новосибирск»
ИНН 5406374623
630102, г. Новосибирск, ул. Кирова, 50, офис 25/1
Тел/факс +7 (383) 363 18 18 (многоканальный)
e-mail: office@dn-nsk.ru; www.dn-nsk.ru

Коммерческая недвижимость
$ 81,36     € 94,38 Курс ЦБ на 21.10.2025

ВАРИАНТ №А024861-У
Тип помещения Универсальное помещение
Город/ посёлок, район Новосибирск. Железнодорожный
Местонахождение/ адрес ул. Фабричная
Стоимость 750 Р / м2
Общая площадь 300 м2

Описание:

Предлагаются в аренду универсальные и офисные помещения в административном здании с единой концепцией по внутреннему ремонту и фасаду здания в стиле «лофт».  

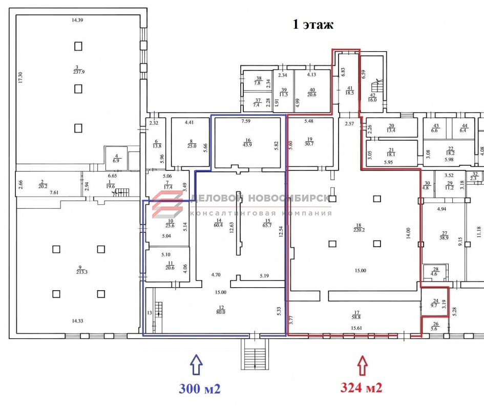
1 этаж (фактически это цокольный этаж с высокими потолками)
площадь 624,0 кв.м, два отдельных входа и одни разгрузочные ворота с возможностью подъезда Газели. Большие окна в приямках, высота потолка 3,87 м, на полу бетонная стяжка, стены - шлифованный кирпич/декоративная штукатурка, потолок - металлический профиль, покрашенный в черный цвет.
Возможны варианты деления на следующие помещения: 324,0 кв.м и 300,0 кв.м, данное помещение подходит для оптово-розничной торговли, офиса продаж с выставочным залом и другого;
площадь 92,0 кв.м, офис с отдельным входом два смежных зала, с/узел. Большие витражные окна, высокий потолок, выполнен ремонт.

2 этаж общей площадью 1500 кв.м (фактически это 1 этаж с высокими потолками - 6 м и антресольным этажом).
Остались 4 офисных блока: 137,5  кв.м (1 этаж 56,6 кв.м и антресоль 80,9 кв.м); 215,8 кв.м (1 этаж 147,45 кв.м и антресоль 68,3 кв.м); 263,5 кв.м (1 этаж 153,8 кв.м и антресоль 109,7 кв.м); 277,7 кв.м (1 этаж 160 кв.м и антресоль117,7 кв.м). Все офисные блоки можно объединять между собой и соответственно увеличивать площадь до 894,5 кв.м.

В настоящее время ведется работа по реновации здания и приведения его в единую концепцию в стиле «лофт». Внутри помещений будет выполнен ремонт собственником, полы топинговые беспылевые, на стенах шлифованный кирпич/декоративная штукатурка, потолок будет подшит рефленым металлическим профилем и покрашен в черный цвет. 

Удобная транспортная развязка, здание расположено в 5 минутах езды на автомобиле от центра города, 350 м до остановки общественного транспорта. 

Стоимость арендной платы 750 руб./кв.м в месяц, коммунальные услуги включены, дополнительно оплачиваются э/энергия, вода, уборка внутри помещений и связь. Предусмотрен обеспечительный платеж в размере месячной арендной платы. Собственник физическое лицо, договор аренды от ИП.

Компания "Деловой Новосибирск" - официальный представитель собственника. Без комиссии для арендатора!

В качестве примера дизайна на главной фотографии изображен Коворкинг «Место». 




Контактное лицо: Дмитрий Валерьевич Белых

Контактный телефон: +7 (383) 363 18 18 (многоканальный)

e-mail: dn5@dn-nsk.ru

В качестве примера дизайна на главной фотографии изображен Коворкинг «Место»
1 этаж 92 кв.м 1 этаж 92 кв.м 2 этаж 2 этаж 2 этаж 2 этаж 2 этаж 2 этаж 2 этаж

Похожие варианты


Железнодорожный
89.1 м2

Центральный
26.4 м2

Центральный
439.3 м2

Центральный
58.5 м2

Октябрьский
130 м2